**Standout Features:**
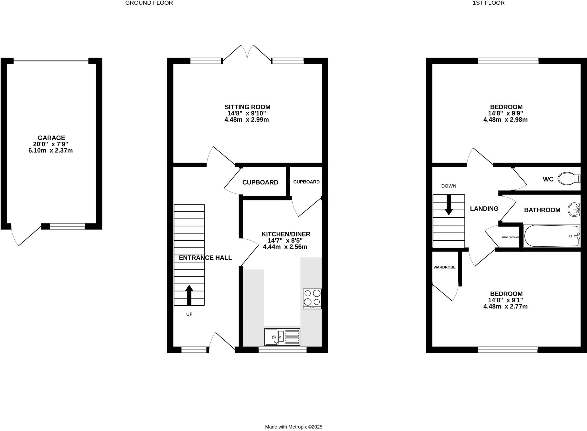
- Charming mid-20th century terraced house with a modern kitchen
- Two double bedrooms ideal for first-time buyers or small families
- Low-maintenance front yard and a small, private back garden
- Chain-free sale for a quick move-in
- Excellent mobile signal and fast broadband speeds
**Potential Downsides:**
- Property size is compact, which may not suit larger families
- Located in an area with above-average crime rates
- Positioned in a deprived area, which may affect residents' amenities and community resources
**Summary:**
Discover this delightful two-bedroom terraced home nestled in a quiet, suburban area. Ideal for first-time buyers or those seeking a cozy retreat, this property features a modern kitchen that opens up to a bright living area, complemented by generous natural light flowing through large windows. The small but well-maintained garden serves as a private outdoor haven for relaxation or gatherings. With off-street parking and no onward chain, this home offers convenience and a swift transition.
While the location does present higher crime rates and is classified as deprived, it remains a comfortable choice for individuals or couples. Local schools boast good ratings, making it a practical option for families. Take advantage of this fantastic opportunity to invest in a property that holds potential for both comfortable living and future renovations. Act fast, as opportunities like this are rare!
2 bedroom terraced house for sale in Ashbourne Crescent, Taunton, TA1 — £182,500 • 2 bed • 1 bath • 487 ft²
2 bedroom end of terrace house for sale in The Shaulders, Taunton, Somerset, TA2 — £230,000 • 2 bed • 1 bath • 483 ft²
2 bedroom terraced house for sale in Cheddon Road, Taunton, Somerset, TA2 — £210,000 • 2 bed • 1 bath • 776 ft²
3 bedroom end of terrace house for sale in Hillyfields, Taunton, Somerset, TA1 — £270,000 • 3 bed • 1 bath • 595 ft²
3 bedroom terraced house for sale in Eastleigh Road, Taunton, Somerset, TA1 — £230,000 • 3 bed • 1 bath • 1071 ft²
3 bedroom semi-detached house for sale in Westleigh Road, Taunton, Somerset, TA1 — £270,000 • 3 bed • 1 bath • 757 ft²






































































