**Standout Features:**
- Semi-detached 1930s property
- 3 bedrooms, ideal for families or first-time buyers
- Bright and spacious living areas
- Fenced garden for privacy
- Off-street parking for multiple vehicles
- Modern kitchen and flexible dining space
**Potential Concerns:**
- Located in a deprived area
- Maintenance needs could be moderate without ongoing updates
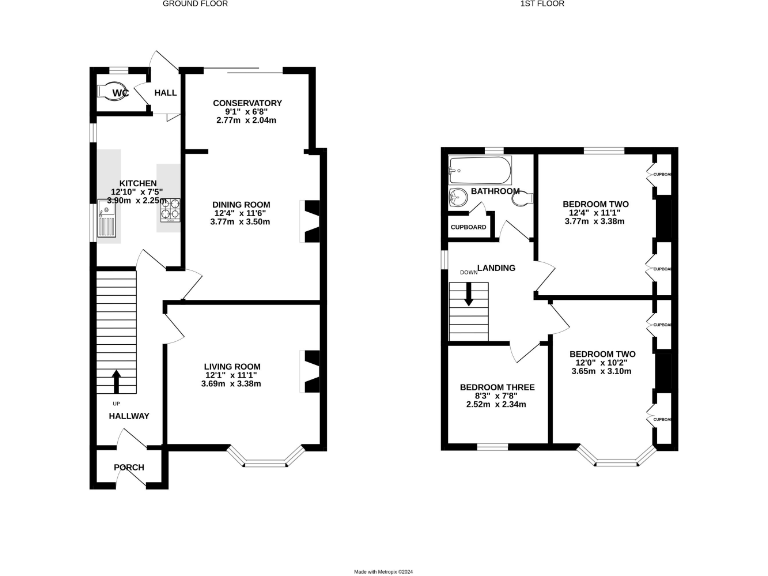
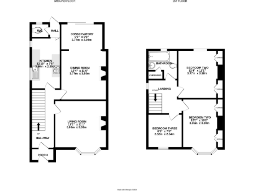
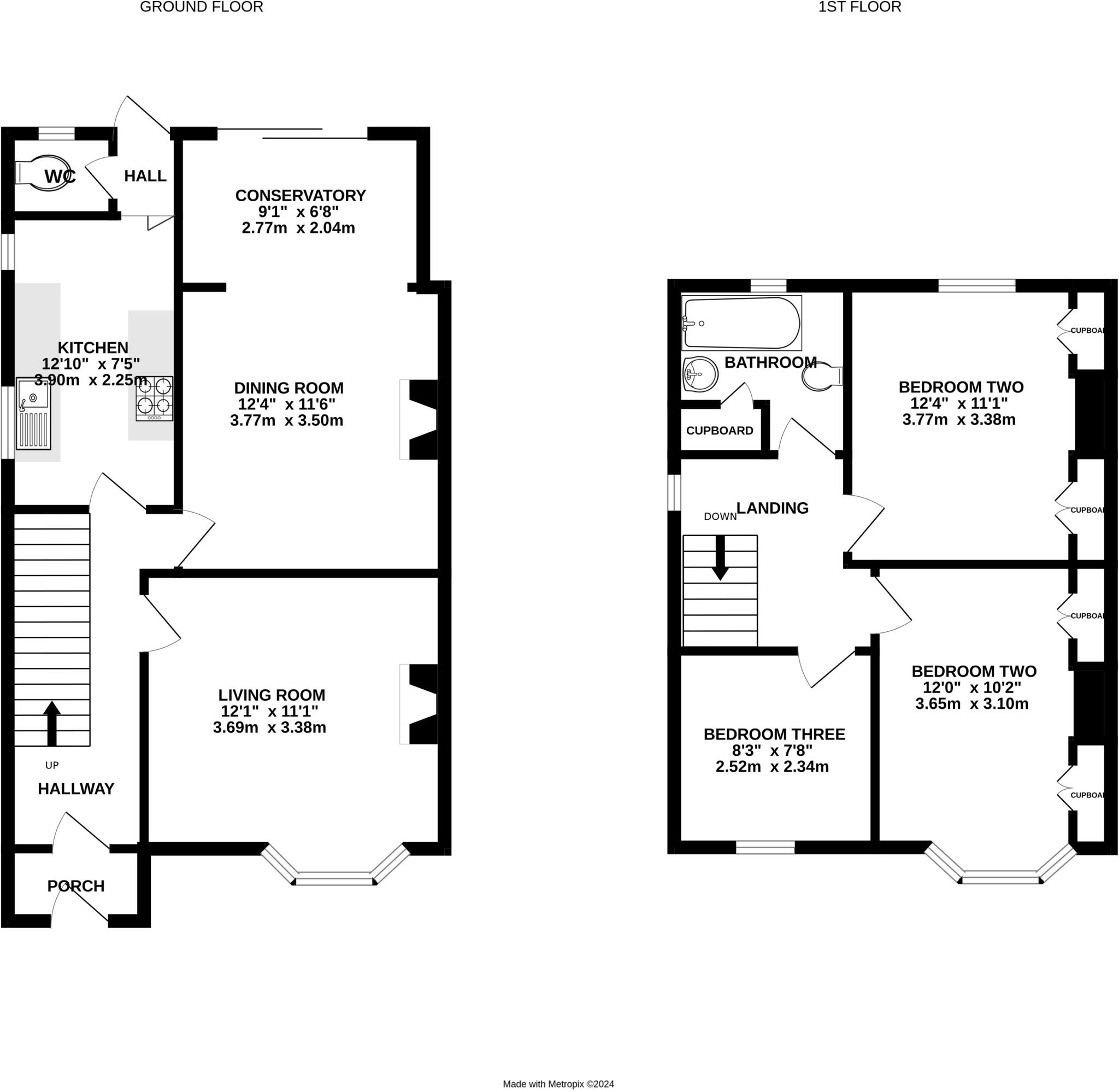
This charming semi-detached home in postcode TA1 2XY presents an exceptional opportunity for families and first-time buyers alike. With three well-sized bedrooms and a spacious living area bathed in natural light from the large bay windows, this property is designed for comfort and functionality. You'll appreciate the modern, well-equipped kitchen that flows into a conservatory-style dining area—perfect for both casual meals and entertaining.
Enjoy outdoor living with a private garden, ideal for relaxation and leisure. The substantial off-street parking can accommodate multiple vehicles, catering to family needs. While located in a deprived area, this home is chain-free and boasts affordable council tax, making it an attractive prospect for budget-conscious buyers. With good local schools boasting positive Ofsted ratings, it's a great environment for families. Don't miss this opportunity—properties like this don't stay on the market for long!
3 bedroom end of terrace house for sale in Hillyfields, Taunton, Somerset, TA1 — £270,000 • 3 bed • 1 bath • 595 ft²
3 bedroom detached house for sale in Harp Chase, Taunton, Somerset, TA1 — £360,000 • 3 bed • 2 bath • 1168 ft²
3 bedroom semi-detached house for sale in 57 Laxton Road, Taunton, TA1 — £235,000 • 3 bed • 1 bath • 730 ft²
3 bedroom semi-detached house for sale in Priorswood Road, Taunton, Somerset, TA2 — £315,000 • 3 bed • 1 bath • 951 ft²
3 bedroom semi-detached house for sale in Dorchester Road, Taunton, Somerset, TA2 — £210,000 • 3 bed • 1 bath • 681 ft²
2 bedroom terraced house for sale in Haywood Road, Taunton, Somerset, TA1 — £220,000 • 2 bed • 1 bath • 547 ft²














































































































