**Standout Features:**
- Converted Victorian mansion apartment with original character
- Spacious living room with wood-burning stove and scenic water views
- Newly renovated kitchen and bathroom (2021)
- Two generous double bedrooms
- Extensive private garden with outbuildings: summer house, workshop, and greenhouse
- Off-street parking available
- Peaceful rural setting close to Rosneath and Clynder
**Notable Concerns:**
- Located in an area classified as very deprived
- Moderate council tax
- Slow broadband speeds
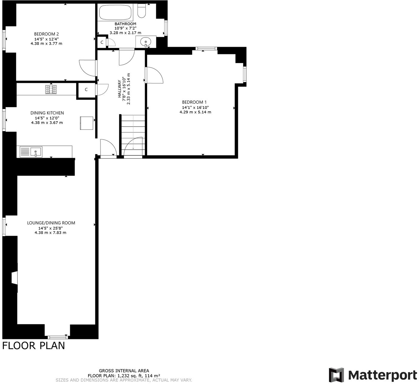
Discover the charm of Tigh-Na-Mara House, a beautifully converted first-floor apartment nestled in a former Victorian mansion with stunning views of the Gare Loch. This generous 1163 sq ft home features a large lounge with a cozy wood-burning stove, two spacious double bedrooms, and a stylish dining-sized kitchen equipped with high-end appliances. Recently renovated in 2021, the apartment boasts modern comforts, including a new kitchen, bathroom, and heating system, along with double glazing for energy efficiency.
The extensive private garden is a significant highlight, offering ample outdoor space with a timber summer house, workshop, and greenhouse, perfect for gardening enthusiasts. This property combines peace and tranquility with accessibility to local amenities in nearby villages and the larger town of Helensburgh, making it ideal for families or first-time buyers looking for comfortable living in a quiet setting. With its inviting atmosphere and substantial upgrade potential, this property won't last long on the market—explore the unique lifestyle it offers today!
3 bedroom flat for sale in Caerphilly, Garelochhead, G84 0AR, G84 — £245,000 • 3 bed • 2 bath • 1001 ft²
3 bedroom apartment for sale in 20a Queen Street, Helensburgh, G84 9LG, G84 — £329,500 • 3 bed • 2 bath • 1636 ft²
3 bedroom apartment for sale in 1 Upper Adelaide Street, Helensburgh, G84 7HT, G84 — £429,000 • 3 bed • 3 bath • 2368 ft²
3 bedroom flat for sale in Clynder, Helensburgh, Argyll and Bute, G84 — £230,000 • 3 bed • 2 bath • 1542 ft²
5 bedroom apartment for sale in The View, Rockfort, East Clyde Street, Helensburgh, G84 7AX, G84 — £559,000 • 5 bed • 2 bath • 2830 ft²
4 bedroom flat for sale in Montrose Street East, Helensburgh, Argyll and Bute, G84 — £425,000 • 4 bed • 2 bath • 1760 ft²






























































































