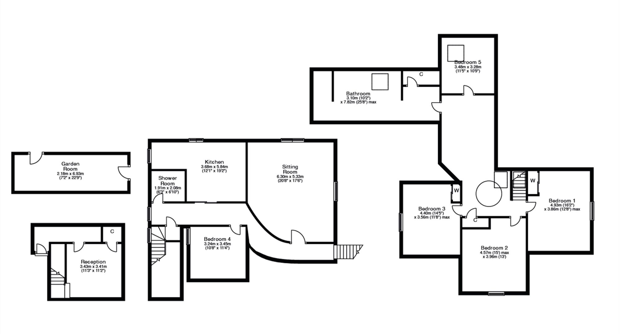
**Standout Features:**
- Spacious main door upper conversion covering 263sqm (2830 sqft).
- Located in a luxury, gated coastal development with stunning water views.
- Four bedrooms plus a versatile study/home office or fifth bedroom.
- Newly renovated with high-end finishes and bespoke designer kitchen.
- Private garden with annex garden room equipped with a kitchen.
- Original architectural details, including a grand reception hall and wood burning stove.
- Private parking for three cars and excellent mobile and broadband connectivity.
- Grade 'B' listed property with a historic charm dating back to 1849.
**Downsides:**
- Property is in a very deprived area.
- Council tax is expensive.
- Maintenance may be required due to age and listed status.
**Summary:**
Discover 'The View,' an exceptional 4/5 bedroom main door upper conversion in an exclusive gated development in Helensburgh, perfectly blending historical charm with modern luxury. This beautifully appointed residence boasts breathtaking views over the Firth of Clyde and features a bespoke designer kitchen, a spacious lounge with a wood burning stove, and a stunning family bathroom equipped with a Philippe Starck two-person bath. The outdoor space includes a private garden and a versatile garden room, ideal for relaxation or entertaining.
With its upscale finishes and thoughtfully designed layout, this property is a dream for families seeking comfort and style or investors looking for high rental potential in a coveted location. Though situated in a less affluent area and subject to higher council tax rates, the unique opportunity to reside in a luxury coastal setting, complete with off-street parking and rapid access to Glasgow, makes this property truly special. Don’t miss your chance to call this stunning abode your home—schedule a viewing today!
3 bedroom apartment for sale in 20a Queen Street, Helensburgh, G84 9LG, G84 — £329,500 • 3 bed • 2 bath • 1636 ft²
3 bedroom apartment for sale in 1 Upper Adelaide Street, Helensburgh, G84 7HT, G84 — £429,000 • 3 bed • 3 bath • 2368 ft²
4 bedroom flat for sale in Montrose Street East, Helensburgh, Argyll and Bute, G84 — £425,000 • 4 bed • 2 bath • 1760 ft²
4 bedroom detached house for sale in 6 Macleod Drive, Helensburgh, G84 9QS, G84 — £415,000 • 4 bed • 4 bath • 1915 ft²
4 bedroom town house for sale in Glennan Gardens, Helensburgh, Argyll and Bute, G84 — £425,000 • 4 bed • 3 bath • 1753 ft²
5 bedroom detached house for sale in Stafford Street, Helensburgh, G84 — £695,000 • 5 bed • 3 bath • 3732 ft²


































































































































































