**Standout Features:**
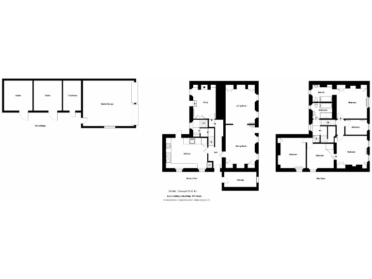
- Stunning Grade II Listed former farmhouse with historical character.
- Five spacious bedrooms, including one en suite.
- Three inviting reception rooms with original features and fireplaces.
- Expansive grounds of approximately 1.8 acres featuring a pond and gardens.
- Detached garage/stable block with renovation potential.
- Located in a tranquil and scenic village near the Cornish coast.
**Potential Concerns:**
- Listed status may complicate renovation plans.
- Limited insulation in construction could impact energy efficiency.
- Council tax band G suggests higher ongoing costs.
Nestled in the serene hamlet of Treburgett, this enchanting Grade II Listed farmhouse, Treburgett Old Hall, offers a harmonious blend of historical charm and comfortable living. With five generously-sized bedrooms, including a delightful en suite, this home features three reception rooms adorned with characterful fireplaces and large sash windows that flood the space with natural light. Outside, revel in approximately 1.8 acres of secluded gardens and paddocks, complete with a picturesque pond, perfect for family gatherings or tranquil evenings.
The property boasts a stunning garage and stable block, providing excellent potential for those looking to customize their space or expand further. Although the historical listing could restrict some renovation possibilities, the property remains a wonderful canvas for buyers seeking a unique country retreat. With amenities in nearby St Teath and beautiful North Cornish coastline just a short drive away, this home offers not only comfort and security but an enviable lifestyle. Act swiftly; treasures like this don’t last long!
4 bedroom detached house for sale in Treveighan, St. Teath, Bodmin, Cornwall, PL30 — £1,250,000 • 4 bed • 2 bath • 6681 ft²
3 bedroom detached house for sale in St. Endellion, Port Isaac, Cornwall, PL29 — £725,000 • 3 bed • 2 bath • 2121 ft²
3 bedroom detached house for sale in Tregellist, St. Kew, Bodmin, Cornwall, PL30 — £899,950 • 3 bed • 3 bath • 4510 ft²
6 bedroom detached house for sale in Trekenner, Launceston, Cornwall, PL15 — £850,000 • 6 bed • 3 bath • 3495 ft²
4 bedroom detached house for sale in Trebullett, Launceston, Cornwall, PL15 — £585,000 • 4 bed • 2 bath • 1247 ft²
4 bedroom detached house for sale in Helstone. PL32 — £370,000 • 4 bed • 1 bath • 1307 ft²


























































































































































