Large private plot with extension consent; substantial renovation and modernisation required.
Traditional Cotswold stone cottage with original mullion windows and exposed beams
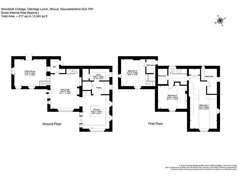
Woodside Cottage is a traditional Cotswold stone house in Oakridge Lynch, set in just under an acre of gardens and grounds with a south-westerly aspect. Recent planning permission allows an extension and internal reconfiguration, giving a clear route to create a larger, more contemporary family home while retaining historic features such as mullion windows and exposed beams.
The property requires renovation throughout, offering scope to specify finishes and improve energy performance. Walls are traditional stone with no assumed insulation, heating is oil-fired via boiler and radiators, and the date of double glazing installation is unknown. Council tax is described as quite expensive and works to modernise heating and insulation should be factored into budgets.
The plot is a major asset: extensive, private grounds, off-street parking and peaceful village views. The village has a strong community, useful amenities and good schools nearby, while countryside and walking start from the doorstep. Lapsed planning permission for a guest house indicates alternative potential but would need fresh consent.
This will suit a buyer seeking a character property with significant scope to remodel and extend — a family wanting long-term space, or an owner-occupier developer who can manage renovation and upgrade costs. The location, plot and planning advantage create genuine potential but the project will require time, investment and practical renovation planning.
4 bedroom semi-detached house for sale in Broadway, Oakridge Lynch, Stroud, GL6 — £650,000 • 4 bed • 2 bath • 1538 ft²
3 bedroom detached house for sale in Longridge, Sheepscombe, Stroud, GL6 — £600,000 • 3 bed • 1 bath • 1334 ft²
4 bedroom detached house for sale in Frampton Mansell, Stroud, Gloucestershire, GL6 — £800,000 • 4 bed • 2 bath • 2382 ft²
3 bedroom semi-detached house for sale in Houndscroft, Rodborough, Stroud, GL5 — £950,000 • 3 bed • 3 bath • 2465 ft²
2 bedroom cottage for sale in Ashley, Tetbury, GL8 — £325,000 • 2 bed • 1 bath • 922 ft²
3 bedroom semi-detached house for sale in Theescombe, Amberley, GL5 — £399,995 • 3 bed • 1 bath • 1026 ft²






















































