Large plot, 41ft open-plan living and clear scope to extend (STPP)..
Extended chalet-style bungalow with first-floor addition
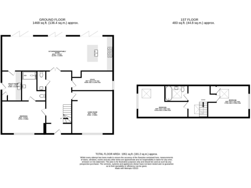
Set on a substantial plot in peaceful Rotherwick, this extended chalet-style bungalow offers family-focused living with clear scope to grow. The rear 41ft open-plan kitchen/dining/living room with bi-fold doors creates a bright social hub opening onto the garden, while a separate generous family room and study provide flexible day-to-day space.
The property sits back from the lane behind mature hedging and a wide circular driveway with off-street parking for several cars. Three bedrooms are arranged across the ground floor footprint with a smaller first-floor addition providing extra sleeping space — a layout that suits children, home working and multigenerational use. Local schools rated Good and independent options are within easy reach.
Practical points to note: the house is oil-heated via boiler and radiators, and broadband speeds are reported as slow — factors to consider for running costs and remote working. The build dates to the 1950s–1960s with a mix of later improvements; while well preserved, the house still offers clear potential for further extension and modernisation (STPP) to increase living space and value.
Overall this is a rare plot in a quiet village setting for families seeking immediate comfortable accommodation with scope to adapt and extend. Buyers looking for turnkey, high-speed connectivity or gas mains heating should factor in likely upgrades.
4 bedroom semi-detached house for sale in Wedmans Place, Wedmans Lane, Rotherwick, RG27 — £595,000 • 4 bed • 2 bath • 3633 ft²
4 bedroom bungalow for sale in Wedmans Lane, Rotherwick, Hook, Hampshire, RG27 — £950,000 • 4 bed • 2 bath • 1612 ft²
6 bedroom detached house for sale in Lyde Green, Rotherwick, Hook, Hampshire, RG27 — £1,950,000 • 6 bed • 5 bath • 5106 ft²
4 bedroom bungalow for sale in Bramley Road, Sherfield-on-Loddon, Hook, Hampshire, RG27 — £825,000 • 4 bed • 1 bath • 1382 ft²
3 bedroom bungalow for sale in New Road, Eversley, Hook, RG27 — £650,000 • 3 bed • 1 bath • 724 ft²
3 bedroom detached bungalow for sale in Heath Ride, Finchampstead, RG40 — £775,000 • 3 bed • 2 bath • 1475 ft²






























































































































