Chain-free three-bedroom semi with garden, garage and nearby village amenities..
Chain free — ready for quick move
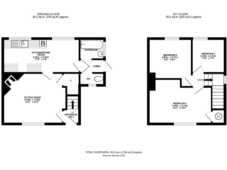
A well-presented three-bedroom semi-detached home offered chain-free — ideal for a first-time buyer seeking an easy move. The ground floor offers a sitting room with a corner log burner and a kitchen/dining room with practical fitted units and direct access to the rear garden. The property benefits from driveway parking and a garage/workshop providing useful storage.
Upstairs are three bedrooms (all recently re-carpeted) served by a family bathroom and a separate WC. The enclosed rear garden is a good size for the area, with lawn, shingle and a summerhouse — practical for outdoor storage, children or pets. The house sits within a short, level walk of Pennington village shops, local schools and the leisure centre, with easy access into Lymington High Street and rail links.
Practical points to note: the overall internal size is modest (approx. 704 sqft) and the plot is small, so this suits first-time buyers or those downsizing rather than buyers seeking large family accommodation. Broadband speeds are slow in the area. The home appears well maintained but offers straightforward scope for cosmetic updates and modernisation to add value.
Overall, this property presents a convenient, low-maintenance starter home in a popular village location. It combines ready-to-live-in comfort with sensible potential for improvement, and the no-chain sale simplifies a quick purchase.
3 bedroom semi-detached house for sale in Pound Road, Pennington, Hampshire, SO41 — £317,500 • 3 bed • 1 bath • 725 ft²
3 bedroom semi-detached house for sale in South Street, Pennington, Lymington, Hampshire, SO41 — £410,000 • 3 bed • 2 bath • 993 ft²
4 bedroom semi-detached house for sale in Corbin Road, Pennington, Lymington, SO41 — £415,000 • 4 bed • 2 bath • 1375 ft²
3 bedroom detached house for sale in Billington Place, Pennington, Lymington, SO41 — £650,000 • 3 bed • 2 bath • 1444 ft²
3 bedroom end of terrace house for sale in Grafton Gardens, Pennington, Lymington, Hampshire, SO41 — £495,000 • 3 bed • 1 bath • 1200 ft²
3 bedroom terraced house for sale in Grafton Gardens, Pennington, Hampshire, SO41 — £325,000 • 3 bed • 1 bath • 874 ft²






































































