Three double bedrooms, garage, large garden — excellent family location close to schools and town..
No forward chain — ready for a quick sale or move-in
Master bedroom with fitted wardrobes and en-suite shower
Large sitting room plus conservatory and separate dining room
Detached single garage and driveway parking for several vehicles
Good-size enclosed rear garden with patio and lawn
Within walking distance of primary and secondary schools
EPC Rating D — lower energy efficiency and higher running costs
Council Tax Band F — higher annual council tax liability
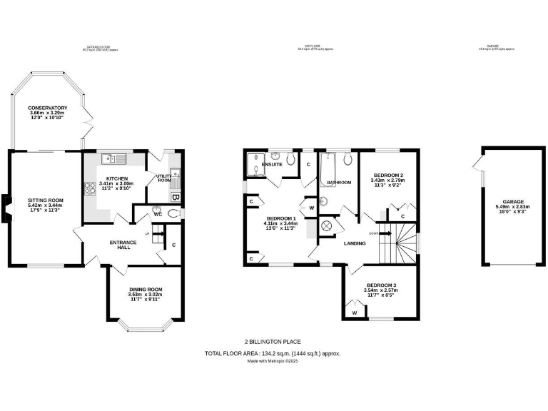
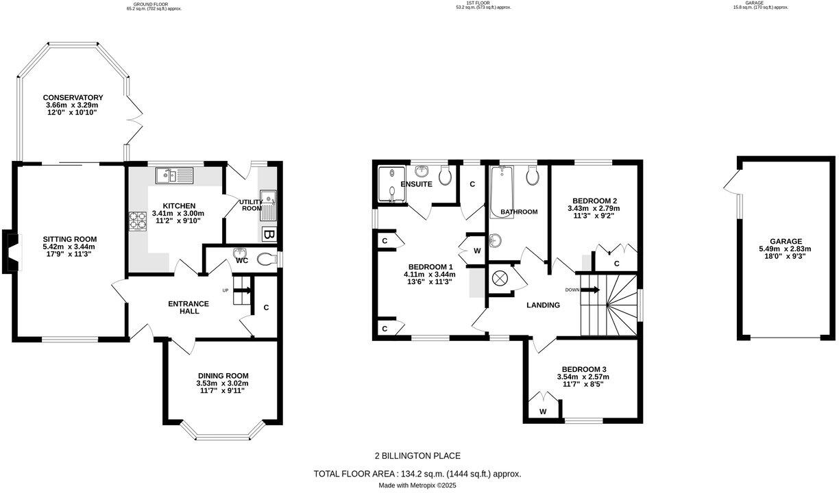
Set on a popular small development within easy reach of Lymington High Street, this three-bedroom detached house suits growing families seeking space and easy access to schools. The ground floor offers a large dual-aspect sitting room opening to a conservatory, a separate dining room with bay window, and a kitchen with an adjoining utility and cloakroom — practical for everyday family life.
Upstairs, all three bedrooms are doubles with fitted wardrobes; the master benefits from an en-suite shower room while a family bathroom serves the other bedrooms. Outside, a generous gravel driveway provides parking for several vehicles, alongside a detached single garage, and a good-sized enclosed rear garden with paved patio and lawn — ideal for children and pets.
Practical details are straightforward: the house is freehold, built around the late 1990s/early 2000s with double glazing, mains gas central heating and a sensible room layout. It is offered with no forward chain and is within walking distance of well-regarded primary and secondary schools, local shops and leisure facilities, and the amenities and quayside of Georgian Lymington are a short drive away.
Notable drawbacks are factual: the EPC rating is D and the property sits in Council Tax Band F, which will mean higher ongoing energy and tax costs than newer, more efficient homes. Broadband and mobile signal are average in the locality. Buyers should view to confirm condition and to assess whether any modernisation is desired to improve energy efficiency or personalise the finish.
3 bedroom detached house for sale in Vitre Gardens, Lymington, SO41 — £575,000 • 3 bed • 2 bath • 1071 ft²
3 bedroom detached house for sale in Haglane Copse, Pennington, Lymington, SO41 — £625,000 • 3 bed • 1 bath • 1992 ft²
3 bedroom semi-detached house for sale in Woodley Gardens, Lymington, SO41 — £485,000 • 3 bed • 2 bath • 984 ft²
4 bedroom link detached house for sale in Marlborough Place, Lymington, SO41 — £675,000 • 4 bed • 3 bath • 1532 ft²
3 bedroom terraced house for sale in Grafton Gardens, Pennington, Lymington, SO41 — £359,000 • 3 bed • 1 bath • 1645 ft²
4 bedroom detached house for sale in Princess Royal Close, Lymington, Hampshire, SO41 — £675,000 • 4 bed • 2 bath • 1662 ft²






































































































