Large family home with flexible space and private garden near green open spaces.
5 bedrooms, two with en-suites, top-floor bedroom with four skylights
Open-plan kitchen/family room plus recently added conservatory
Underfloor heating (ground floor) and EV charge point included
Built 2019 and still covered by remaining new-build warranty
Ample off-street parking from shared driveway; gated side access to garden
B energy rating; separate utility room and built-in appliances
Council tax described as expensive — expect higher running costs
Local crime level reported as very high; broadband speeds average
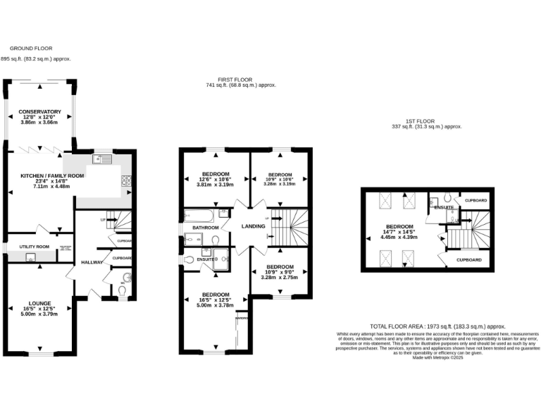
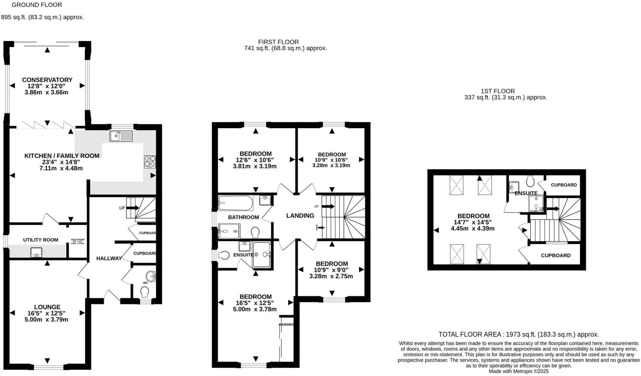
Built in 2019 and still under its new-build warranty, this detached five-bedroom home offers roomy, family-focused accommodation across three floors. The layout centres on a rear open-plan kitchen/family room with a recently added conservatory, creating a bright, sociable hub. Ground-floor underfloor heating and an EV charge point add modern convenience and efficiency.
Four bedrooms on the first two levels are good-sized doubles, two bedrooms have en-suites, and the top-floor bedroom (currently used as a home office) benefits from four skylights and generous storage. The property extends to about 1,900–1,960 sq ft, with sizeable gardens, gated side access and a shared driveway that splits to provide ample off-street parking.
Practical positives include a separate utility room, built-in kitchen appliances, a B energy rating and the reassurance of a remaining build warranty. Local amenities include nearby greenspace (Blaise Castle), sports facilities and several well-regarded schools; Henbury station is due to reopen, improving rail links to the city.
Be clear on running costs and connectivity: council tax is described as expensive, broadband speeds are average, and crime levels in the area are reported as very high. The house is structurally modern but buyers should plan for typical domestic maintenance and factor local safety and cost-of-living considerations into their decision.
3 bedroom detached house for sale in Blaisdon Close, Bristol, Bristol, BS10 — £425,000 • 3 bed • 2 bath • 882 ft²
4 bedroom detached house for sale in Wyck Beck Road,
City of Bristol,
County of Bristol,
BS10 7TE, BS10 — £710,000 • 4 bed • 1 bath • 710 ft²
4 bedroom detached house for sale in Cheers Drive, Bristol, BS5 — £450,000 • 4 bed • 2 bath • 1199 ft²
4 bedroom detached house for sale in Wyck Beck Road, Bristol, BS10 — £499,500 • 4 bed • 1 bath • 1496 ft²
5 bedroom detached house for sale in Sorrel Place, Stoke Gifford, Bristol, South Gloucestershire, BS34 — £595,000 • 5 bed • 3 bath • 1602 ft²
4 bedroom semi-detached house for sale in Beaufort Park,
Wyck Beck Road,
City of Bristol,
County of Bristol,
BS10 7TE, BS10 — £399,000 • 4 bed • 1 bath • 848 ft²


















































































































