Chain-free fixer with gardens and parking, ideal for a family renovation project.
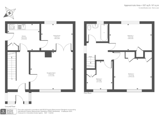
- Three bedrooms with two reception rooms, 937 sq ft (approx.)
- Sold chain free for quick completion
- Driveway parking plus front and rear gardens
- Outbuilding/garage offering storage or conversion potential
- Requires full modernisation; dated bathroom and fittings
- LPG boiler heating; likely solid walls with no insulation
- Single bathroom only; scope to reconfigure internal layout
- Located near good schools; area shows higher deprivation locally
Sold with no onward chain, this three-bedroom semi-detached house in Headington offers a clear route to quick possession and scope to add value. The property includes two reception rooms, a kitchen, single bathroom, and useful outbuilding/garage space, all set on a decent plot with both front and rear gardens and driveway parking.
Built in the 1930s, the home retains period proportions but needs modernisation throughout. Expect an older bathroom, dated fittings, and solid-brick walls likely without insulation. Heating is by an LPG boiler and radiators, and the property would benefit from upgrading windows, services and interior finishes to improve comfort and energy efficiency.
For families, the location is practical: several well-regarded primary and independent schools are nearby and local amenities, sports facilities and regular buses are within easy reach. Crime levels are low and mobile and broadband connectivity are good, making the house suitable for day-to-day living while works are carried out.
If you are looking for a renovation project with immediate possession, this freehold home provides scope to modernise to current standards and increase living quality and value. Be prepared for a full refurbishment rather than cosmetic tweaks; the layout and plot give potential for extension or reconfiguration subject to consents.
3 bedroom semi-detached house for sale in Bayswater Road, Headington, Oxford, OX3 — £210,000 • 3 bed • 1 bath • 929 ft²
3 bedroom semi-detached house for sale in , Oxford, OX3 — £325,000 • 3 bed • 1 bath • 901 ft²
2 bedroom semi-detached house for sale in London Road, Headington, OX3 — £450,000 • 2 bed • 2 bath • 1282 ft²
3 bedroom semi-detached house for sale in Headley Way, Headington, OX3 — £425,000 • 3 bed • 1 bath • 835 ft²
3 bedroom semi-detached house for sale in St. Leonards Road, Headington, Oxford, OX3 — £650,000 • 3 bed • 1 bath • 1283 ft²
3 bedroom semi-detached house for sale in Benson Road, Headington, Oxford, Oxfordshire, OX3 — £350,000 • 3 bed • 1 bath • 940 ft²










































