Rare equestrian smallholding with modern interiors minutes from Norwich city centre.
20ft open-plan kitchen/diner with central island and patio doors
Approximately two-acre plot with fenced paddocks and equestrian facilities
Includes three stables, barn and multiple useful outbuildings
Recently renovated main house with updated bathroom and modern kitchen
Sizeable driveway providing ample off-road parking and direct land access
High flood risk — insurance and mitigation likely required
Double glazing installed before 2002; some external buildings may need maintenance
Mains gas boiler heating, fast broadband and excellent mobile signal
Set on roughly two acres just minutes from Norwich, this three-bedroom semi-detached house combines modernised interiors with substantial outdoor space used as a smallholding and equestrian facility. The grounds include three stables, a barn, multiple outbuildings and securely fenced paddocks — ideal for horse owners, smallholders or buyers seeking rare land close to the city.
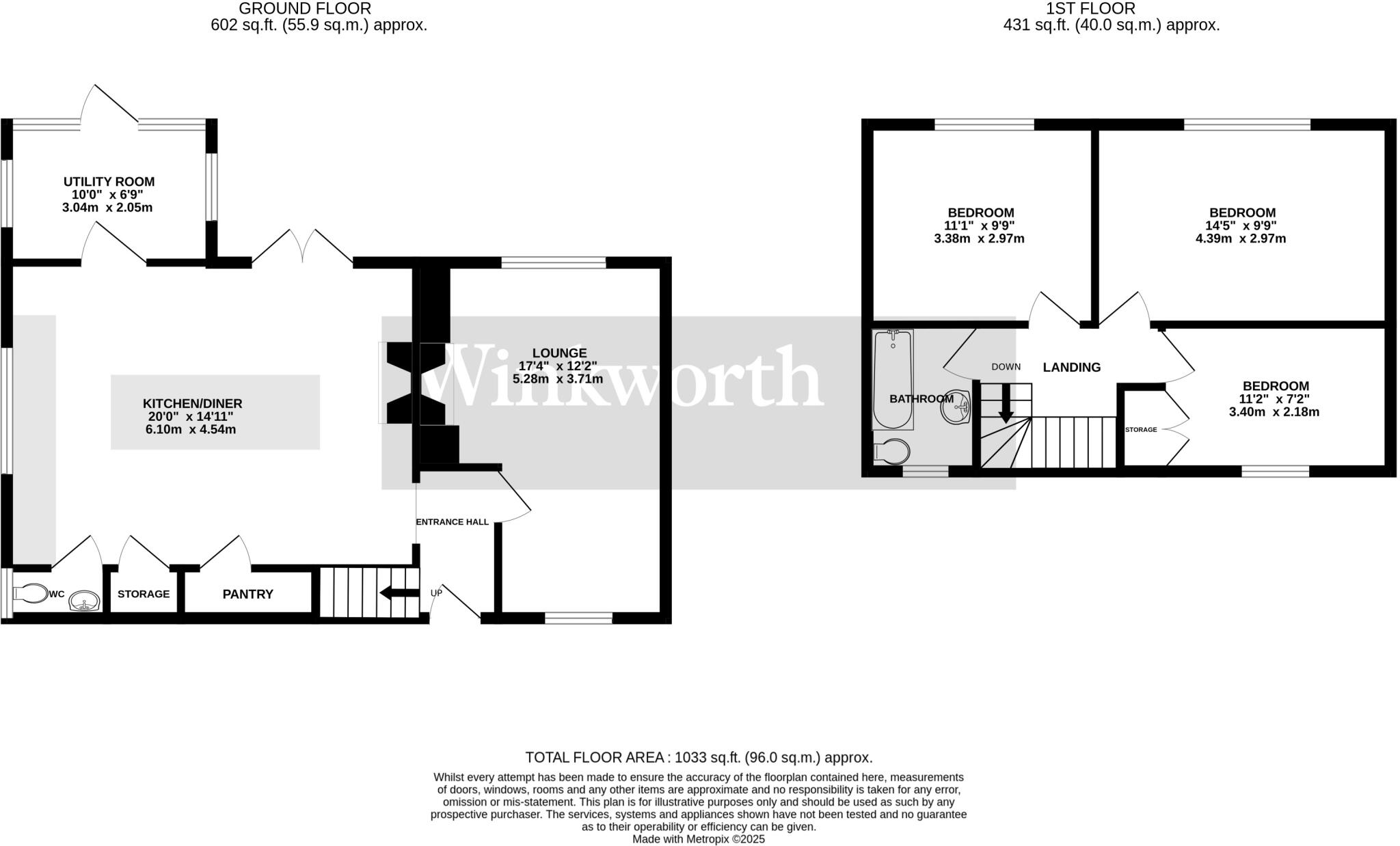
The house was fully renovated in recent years to provide a bright, contemporary feel. Living spaces include a 20ft open-plan kitchen/diner with central island and double doors to the patio, a separate lounge with a wood-burning stove, and a versatile garden room/utility. Three well-proportioned bedrooms and an updated family bathroom sit on the first floor.
Practical strengths include a sizeable driveway with off-road parking, mains gas central heating, double glazing, fast broadband and excellent mobile signal. Council Tax Band B keeps running costs comparatively low. The property is freehold and broadly habitable as presented.
Notable drawback: the site is in a high flood-risk area. Buyers should factor in flood insurance costs and check flood mitigation requirements. Double glazing was installed before 2002 and while the house has been updated, some outbuildings may need maintenance depending on intended use.
4 bedroom detached house for sale in Swan Close, Swannington, Norwich, NR9 — £700,000 • 4 bed • 3 bath • 1772 ft²
4 bedroom detached house for sale in Boundary Lane, Norwich, NR7 — £675,000 • 4 bed • 3 bath • 1557 ft²
4 bedroom detached house for sale in Southburgh, Norwich, Norfolk, IP25 — £875,000 • 4 bed • 2 bath • 5582 ft²
4 bedroom detached house for sale in Hardley Road, Langley, Norwich, NR14 — £1,000,000 • 4 bed • 3 bath • 2637 ft²
1 bedroom terraced house for sale in Ellis Gardens, Keswick, NR4 — £150,000 • 1 bed • 1 bath • 512 ft²
5 bedroom detached house for sale in Swardeston Lane, East Carleton, NR14 — £950,000 • 5 bed • 5 bath • 2965 ft²














































































































































