Compact, chain-free apartment with allocated parking and EWS1 certificate.
Panoramic marina-facing balcony with waterfront views
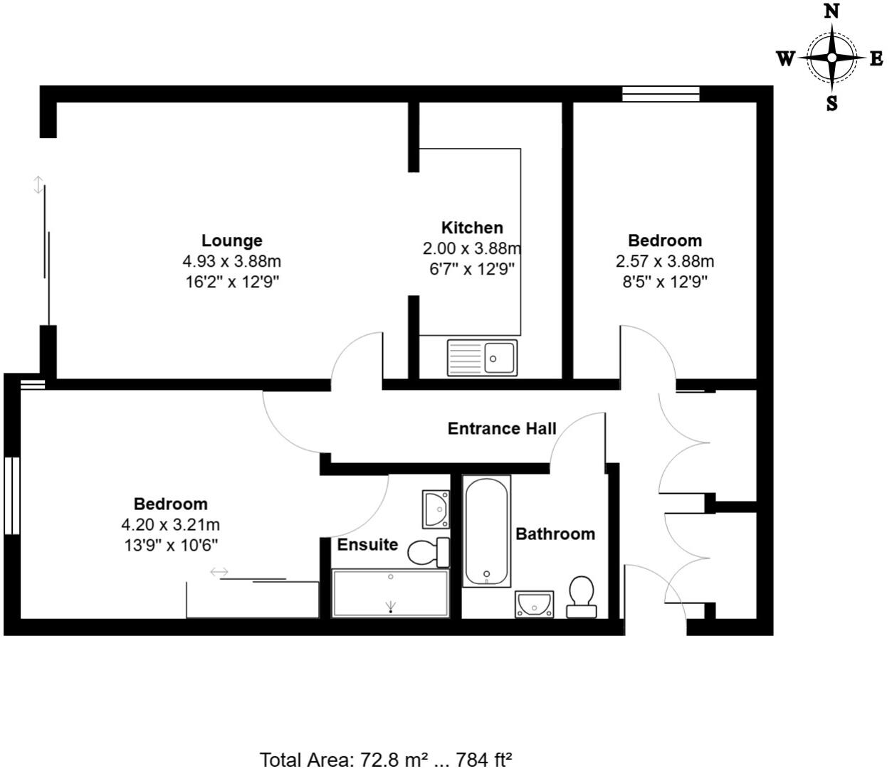
Set on the Ipswich Waterfront, this second-floor two-bedroom apartment offers direct marina views and a balcony for riverside living. At about 546 sq ft the home is compact but well laid out, with an open-plan living/kitchen, ensuite to the main bedroom and a separate bathroom.
Practical details include an allocated parking space beneath the building plus a residents’ parking pass, EWS1 certification, double glazing and a 104-year lease. The property is chain-free, ready for a quick move or rental letting.
Maintenance and running costs are notable: the building’s average service charge is around £2,000 per year and ground rent £200. Heating is by electric room heaters, which may increase energy bills compared with gas systems. The apartment sits in an inner-city area with high local crime statistics, so buyers sensitive to safety should factor this in.
This flat will suit a first-time buyer or investor seeking a waterfront location with strong rental appeal and low flood risk. Its compact size and electric heating make it best for those prioritising location and views over large living spaces or low running costs.
2 bedroom apartment for sale in 51 Patteson Road, Ipswich Waterfront, IP3 — £200,000 • 2 bed • 2 bath • 857 ft²
2 bedroom apartment for sale in Neptune Square, Ipswich, Suffolk, IP4 — £275,000 • 2 bed • 2 bath • 688 ft²
2 bedroom apartment for sale in 1 Anchor Street, Ipswich Waterfront, IP3 — £180,000 • 2 bed • 2 bath • 668 ft²
2 bedroom apartment for sale in Patteson Road, Ipswich, Suffolk, IP3 — £195,000 • 2 bed • 2 bath • 733 ft²
2 bedroom apartment for sale in Key Street, Ipswich, IP4 — £230,000 • 2 bed • 2 bath • 623 ft²
2 bedroom apartment for sale in Patteson Road, Ipswich, IP3 — £195,000 • 2 bed • 2 bath • 752 ft²






























































































