Four-bed detached home on a large plot, chain-free and ready for renovation in sought-after Banbury..
No onward chain, ready for swift completion
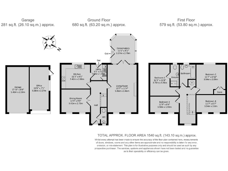
This four-bedroom detached house on Waller Drive sits on a generous plot in a sought-after Banbury suburb. The property offers family-friendly accommodation across roughly 1,540 sq ft, including a living room with fireplace, dining room, conservatory and a kitchen with adjoining utility. A double garage (currently partitioned) and driveway provide substantial parking and workspace options.
Offered with no onward chain, the house is practical and well laid-out for families seeking space and a good local school catchment. The rear garden is fully enclosed, about 50 ft long, with mature planting and a patio — suitable for children and outdoor entertaining. Heating is gas-fed via boiler and radiators; sealed-unit double glazing is installed (installation date unknown).
The property will benefit from updating throughout. Cosmetic refurbishment and possible kitchen or bathroom modernisation are required; the conservatory has a polycarbonate roof and may need improvement. The garage has already been partially converted and could be returned to full garage use or adapted as a home office. Council Tax Band E and above-average local affluence are notable for budgeting and resale expectations.
In short, this is a comfortable family home in an affluent development with clear potential for value-added refurbishment. Buyers should allow budget for modernisation works to make the most of the plot, layout and location.
4 bedroom detached house for sale in Wychwood Gardens, Banbury, OX16 — £520,000 • 4 bed • 2 bath • 1466 ft²
4 bedroom detached house for sale in Sussex Drive, Banbury, OX16 1UR, OX16 — £385,000 • 4 bed • 2 bath • 1082 ft²
3 bedroom detached house for sale in Foxwood Close, Banbury, OX16 — £379,950 • 3 bed • 2 bath • 1133 ft²
4 bedroom detached house for sale in Queensway, Banbury, OX16 — £495,000 • 4 bed • 2 bath • 1333 ft²
4 bedroom detached house for sale in Romney Road, Banbury, OX16 — £350,000 • 4 bed • 1 bath • 1262 ft²
3 bedroom link detached house for sale in Bullers Street, Banbury, OX16 — £320,000 • 3 bed • 2 bath • 904 ft²






























































































