Substantial rural rebuild opportunity near coast and town.
["Planning permission in place to create a 4-bed home with garage (ref 22/0246/PA)","Approx 1.37 acres of grounds with paddock and small woodland","Traditional stone longhouse with surviving external walls and character features","Ruinous condition — requires full reconstruction and new services","Accessible location — about 1 mile to Pembroke and coastal walking routes","Former agricultural buildings: milking parlour, cow shed, pig sty included","Potential for tourism or holiday use subject to future planning changes","Very slow broadband and site in a very deprived area — impacts on services"]
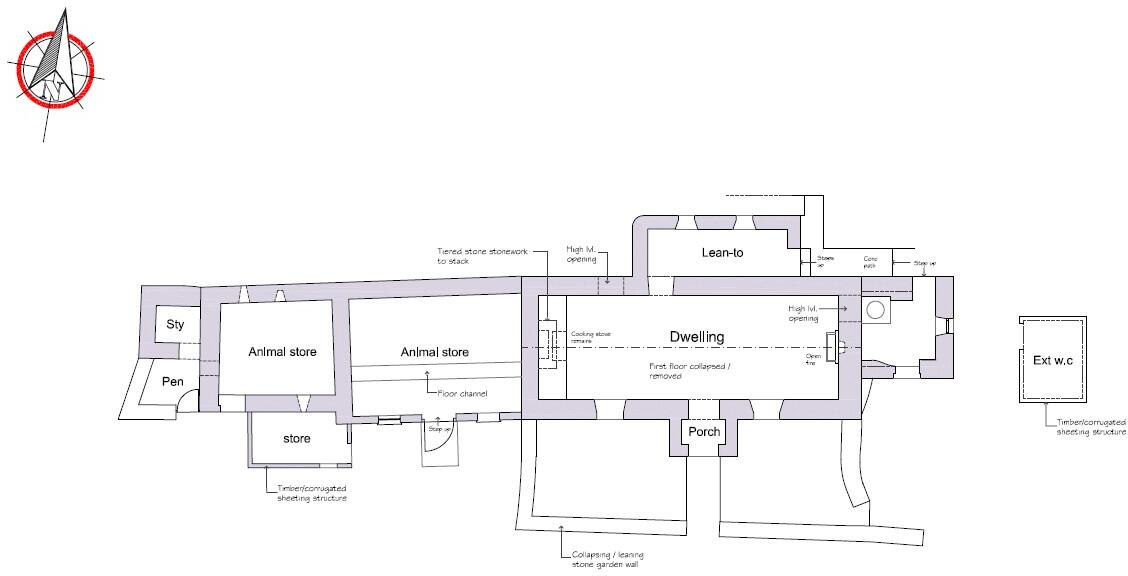
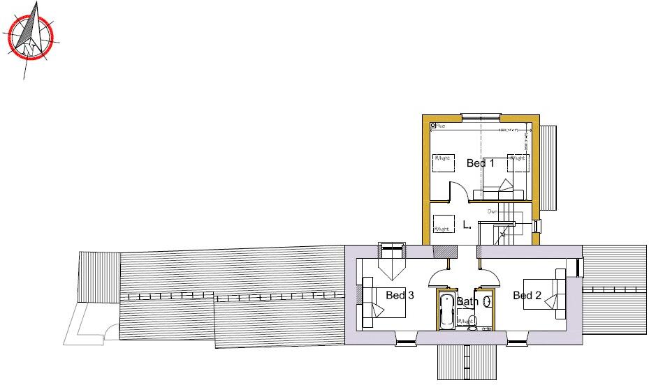
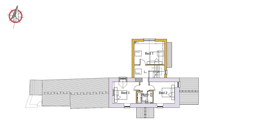
A derelict Pembrokeshire longhouse set in about 1.37 acres, Sunnyside is offered as a substantial renovation project with planning permission (ref 22/0246/PA) to convert and extend into a four-bedroom family home with garage. The stone walls survive and some conservation work has been carried out to repoint and protect exposed wall tops, preserving traditional character that will suit a sympathetic rebuild.
The site is rural but not remote — roughly one mile from Pembroke and within easy reach of coastal walks such as Stackpole Quay and Barafundle. Grounds include an enclosed yard, former milking parlour, cow shed, pig sty, a paddock and a small area of woodland, offering flexible options for gardens, paddocks or tourism use subject to future planning policy changes.
This is a major project: the building is a shell with partial chimneys and openings, requiring full reconstruction, new roof, services reconnection and extensive internal works. Buyers should allow for significant remedial costs, structural stabilisation and full surveys before committing.
The site may also interest investors or holiday‑use proposals if future local plan changes increase tourism‑use flexibility. Due diligence is essential: check title, any heritage constraints, utility access and commission a full structural survey and costed renovation plan.
Plot for sale in Paskeston Barns, Cosheston, Pembrokeshire, SA72 — £300,000 • 3 bed • 1 bath • 1000 ft²
Detached house for sale in Merrion, Nr Pembroke, Pembrokeshire, SA71 — £750,000 • 1 bed • 1 bath
5 bedroom barn conversion for sale in Lydstep, Tenby, Pembrokeshire, SA70 — £500,000 • 5 bed • 3 bath • 3998 ft²
7 bedroom detached house for sale in Cosheston, Pembroke Dock, Pembrokeshire, SA72 — £675,000 • 7 bed • 2 bath • 2518 ft²
3 bedroom detached house for sale in Martletwy, Narberth, SA67 — £150,000 • 3 bed • 2 bath
3 bedroom smallholding for sale in Honeyborough Green, Neyland, SA73 — £480,000 • 3 bed • 3 bath • 1765 ft²






































































