Development opportunity with planning consent in quiet Martletwy village near Narberth.
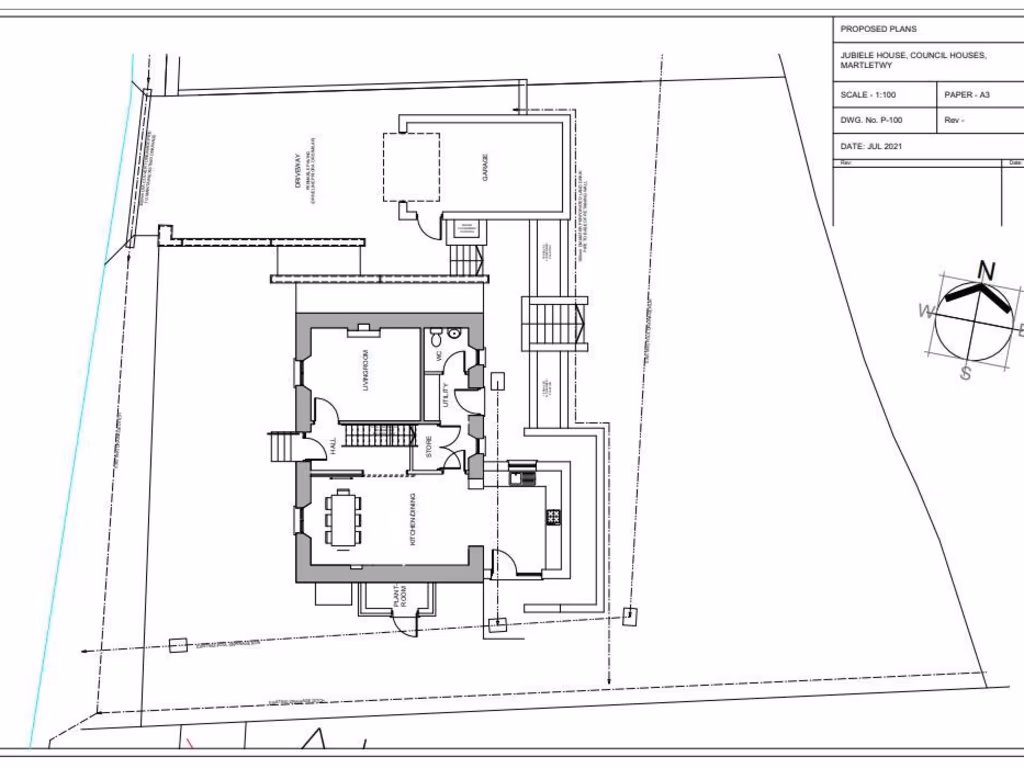
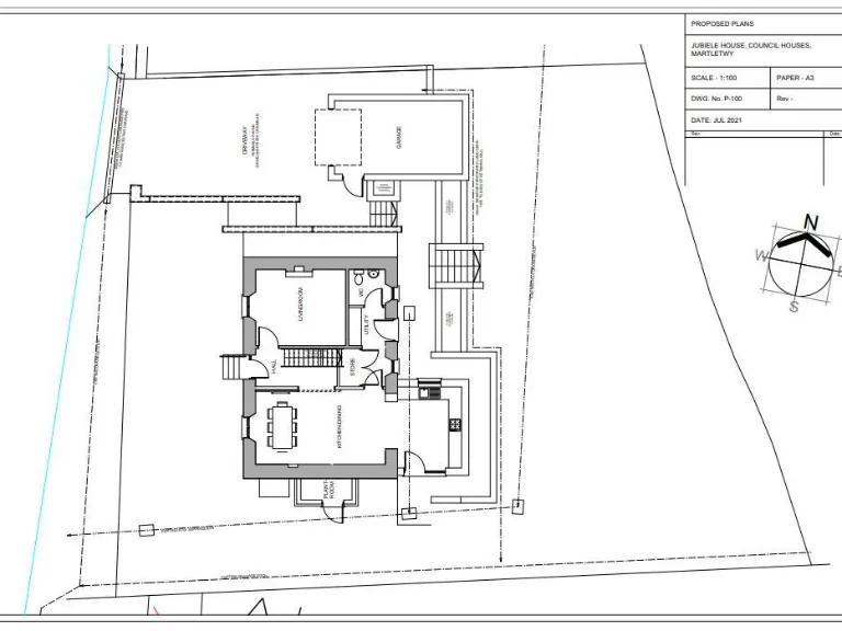
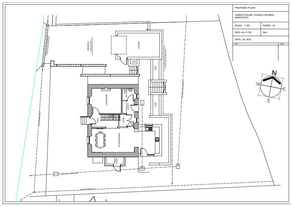
- Approved planning permission for extension and detached garage (ref 21/0533/PA)
- Large, slightly elevated plot with room for driveway and garden
- Detached traditional stone cottage with period character
- Internally derelict; requires full renovation or redevelopment
- No heating; services and appliances untested by seller
- Static caravan present on site; will be included in sale
- Sold at auction (ends 03.12.2025 @ 2pm); freehold, no onward chain
- Slow broadband and remoter, very deprived local area
A detached traditional stone house on a large, slightly elevated plot in Martletwy, offered at auction with vacant possession. The property has approved planning permission (Pembrokeshire County Council ref 21/0533/PA) for an extension and a detached garage, creating a 3/4 bedroom home over three storeys once completed. The site currently includes a static caravan and space for a driveway to the front and a rear garden.
Internally the building is in a stripped, derelict state and will require comprehensive refurbishment or rebuilding works before occupation. There is currently no heating, services and appliances have not been tested, and the house appears to need structural and cosmetic repair. EPC is listed as exempt.
This lot suits a buyer seeking a development or renovation project — an investor, builder or experienced DIY purchaser who can manage planning/completion works. Note the property will be sold at auction (bidding open; auction ends 03.12.2025 @ 2pm) and is freehold with no onward chain. Local amenities are limited; broadband is slow and the area is classified as remoter and very deprived, but the location offers quiet village living near Narberth and countryside walks.
2 bedroom detached house for sale in Keeston, Haverfordwest, SA62 — £275,000 • 2 bed • 1 bath • 874 ft²
5 bedroom detached house for sale in Chapel Hill, Camrose, Haverfordwest, Pembrokeshire SA62 6JN, SA62 — £179,000 • 5 bed • 1 bath • 2070 ft²
Detached house for sale in Taylors Lake, Pembroke, Pembrokeshire, SA71 — £240,000 • 1 bed • 1 bath
3 bedroom bungalow for sale in Castle View, HAVERFORDWEST, Dyfed, SA61 — £220,000 • 3 bed • 1 bath • 1121 ft²
8 bedroom detached house for sale in Llawhaden, Narberth, Pembrokeshire, SA67 — £600,000 • 8 bed • 6 bath
Detached house for sale in Llanfallteg, Whitland, SA34 — £65,000 • 1 bed • 1 bath






































































