Renovated 2-bed Victorian cottage with garden, parking and village location.
Victorian end-of-terrace with exposed beams and wood burner
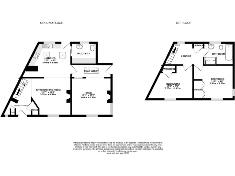
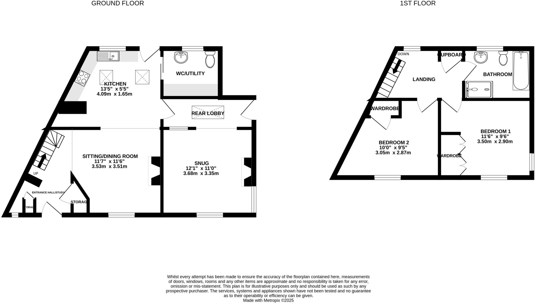
Autumn Cottage is a fully renovated two-bedroom Victorian end-of-terrace with original character and a compact, well-planned layout. The sitting room retains exposed beams and a new wood burner; the kitchen has been extended, fitted with integrated appliances and granite worktops, creating a bright open-plan living and dining space. Two double bedrooms with built-in wardrobes and a newly fitted bathroom occupy the first floor.
Outside, the cottage sits within a small, enclosed garden with a large shed and off-street parking accessed from the village lane. The property benefits from oil-fired central heating, double glazing installed after 2002, fast broadband and very low local crime. Set in the Conservation Area of Shroton, the house is a short walk from a farm shop, pub and footpaths up Hambledon Hill. Blandford Forum and Shaftesbury are within easy driving distance for wider services.
Practical points to note: the house is small at about 543 sq ft and sits on solid brick walls (likely without cavity insulation), which may limit thermal performance despite double glazing and the oil boiler. Oil heating and a historic construction date (pre-1900) mean ongoing maintenance and running costs should be considered. The property will suit someone seeking a character cottage, a low-maintenance village base or a downsizing buyer who values location and finish over large internal space.
2 bedroom end of terrace house for sale in The Terrace, Watery Lane, Iwerne Minster, Blandford Forum, DT11 — £385,000 • 2 bed • 1 bath • 976 ft²
2 bedroom house for sale in Well Lane, Shaftesbury, SP7 8LP, SP7 — £300,000 • 2 bed • 1 bath • 872 ft²
2 bedroom end of terrace house for sale in Shillingstone, DT11 — £329,000 • 2 bed • 2 bath • 858 ft²
2 bedroom end of terrace house for sale in Hambledon Row, Shillingstone, Blandford Forum, DT11 — £329,000 • 2 bed • 2 bath • 1012 ft²
2 bedroom end of terrace house for sale in South Holme, Stourpaine, Blandford Forum, DT11 — £225,000 • 2 bed • 1 bath • 479 ft²
2 bedroom end of terrace house for sale in Upper Street, Child Okeford, Blandford Forum, DT11 — £195,000 • 2 bed • 1 bath • 575 ft²


























































































