Chain-free two-bedroom home with garage, wrap garden and on-site community facilities.
Chain-free freehold park home on Deanland Wood Park
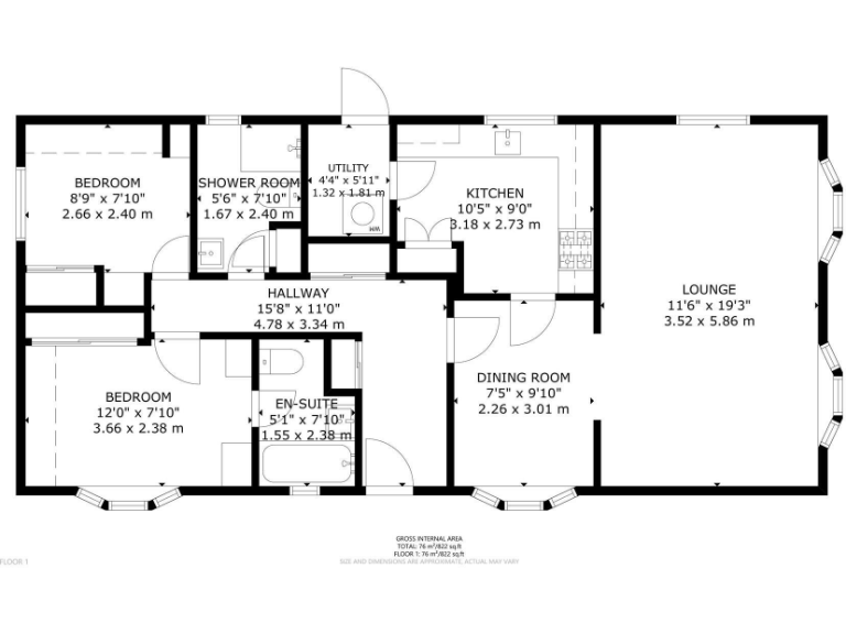
Set within the well-maintained Deanland Wood Park, this single-storey park home offers a practical two-bedroom layout tailored to over-50s living. The principal bedroom includes an en-suite, there is a separate large lounge with bay window, and a generously proportioned kitchen and dining area. The plot includes a wrap-around garden, driveway and detached garage for convenient parking and storage.
The home is sold chain free on freehold tenure with a site fee of £213.19 (including water). It benefits from oil-fired central heating and a quiet, low-crime park setting with on-site amenities: bowling green, convenience store, pub/restaurant and social hall, plus regular bus links to Hailsham and Uckfield. Broadband is average and mobile signal is excellent.
Internally the property requires modernisation throughout: decorative finishes are dated, some rooms are compact with low ceilings typical of park homes, and updating the fixtures and fittings will be needed to bring the home up to current tastes and standards. For buyers seeking a straightforward single-level retirement property, or investors looking for value-add refurbishment, the layout and plot offer clear potential.
A viewing is recommended to appreciate the proportions and garden. This is a modest, well-positioned park home that will suit downsizers wanting community living, or buyers prepared to invest in cosmetic and functional upgrading to unlock greater value.
2 bedroom park home for sale in Deanland Wood Park, Golden Cross, Hailsham, BN27 — £240,000 • 2 bed • 2 bath • 898 ft²
2 bedroom park home for sale in Deanland Wood Park, Golden Cross, Hailsham, BN27 — £185,000 • 2 bed • 1 bath • 720 ft²
2 bedroom park home for sale in Primrose Acre, Deanland Wood Park, BN27 — £120,000 • 2 bed • 1 bath • 590 ft²
3 bedroom park home for sale in Deanland Wood Park, Golden Cross, Hailsham, BN27 — £235,000 • 3 bed • 2 bath • 928 ft²
2 bedroom park home for sale in Deanland Wood Park, Golden Cross, Hailsham, BN27 — £180,000 • 2 bed • 2 bath • 909 ft²
2 bedroom park home for sale in Deanland Wood Park, Golden Cross, Hailsham, BN27 — £190,000 • 2 bed • 2 bath • 742 ft²


















































































