**Standout Features:**
- Well-presented 1998 park home in an award-winning residential park
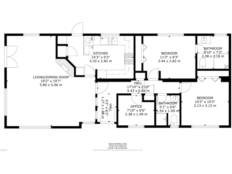
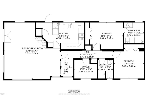
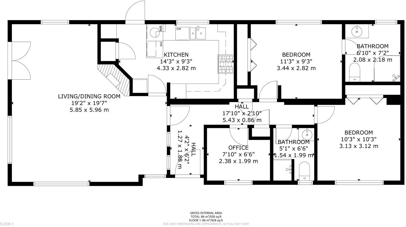
- Spacious L-shaped lounge/dining room with garden access
- Three bedrooms (two are traditional; one is an office), including a master with ensuite
- Block-paved driveway and garage with power and light
- Private, mature garden with seating areas
- Chain-free sale for quick transitions
- Low crime rate and amenities nearby
Nestled in the tranquil Deanland Wood Park, this inviting three-bedroom park home offers a serene living environment surrounded by mature woodland. You’ll appreciate the spacious L-shaped lounge/dining area that flows seamlessly into the private garden, perfect for entertaining or enjoying peaceful evenings. The home features a well-equipped kitchen, an office/third bedroom, and two bathrooms, including an ensuite for the main bedroom.
Step outside to cherished gardens that provide a perfect escape, blending lush greenery with areas for seating. With a block-paved driveway leading to a garage equipped with power and light, convenience is at your fingertips. Enjoy living in a charming community with access to essential amenities and excellent schools within close proximity. With no onward chain and potential for modernization, this property is an enticing opportunity for families, retirees, or investors alike. Don’t miss your chance to experience comfort, security, and future potential – viewing is highly advised!
3 bedroom park home for sale in Deanland Wood Park, Golden Cross, Hailsham, BN27 — £225,000 • 3 bed • 2 bath • 932 ft²
2 bedroom park home for sale in Deanland Wood Park, Golden Cross, Hailsham, BN27 — £235,000 • 2 bed • 2 bath • 928 ft²
3 bedroom park home for sale in Deanland Wood Park, Golden Cross, Hailsham, BN27 — £195,000 • 3 bed • 2 bath • 938 ft²
2 bedroom park home for sale in Deanland Wood Park, Golden Cross, Hailsham, BN27 — £135,000 • 2 bed • 1 bath • 706 ft²
2 bedroom park home for sale in Primrose Acre, Deanland Wood Park, BN27 — £120,000 • 2 bed • 1 bath • 590 ft²
2 bedroom park home for sale in Beech Avenue, Deanland Wood Park, Golden Cross, Hailsham, BN27 — £179,950 • 2 bed • 2 bath • 728 ft²


























































































