Ready-permission urban plot for two 2-bed semis — ideal for small developers..
- Planning permission for 2 x 2-bed semi-detached houses (ref 71991/FUL)
- Freehold plot with vehicular access from Warrington Street
- Open-plan living, separate study, guest cloakroom included
- Small rear gardens and modest plot footprint
- Site contains derelict structures; requires clearance and preparation
- Located in a very deprived area with very high crime rates
- Suited to small/medium builders or buy-to-let investors
- Price: £115,000
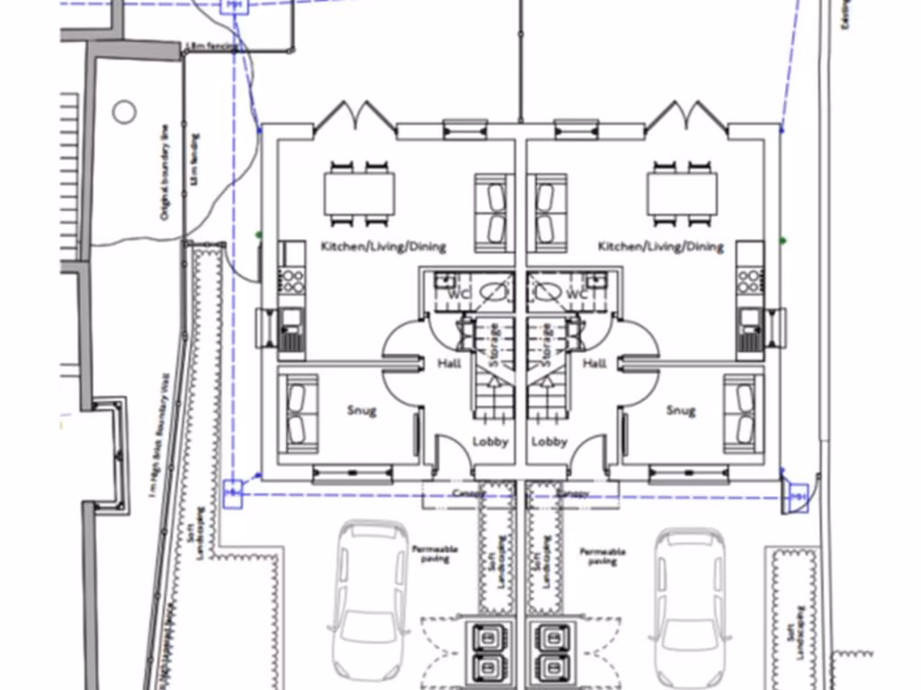
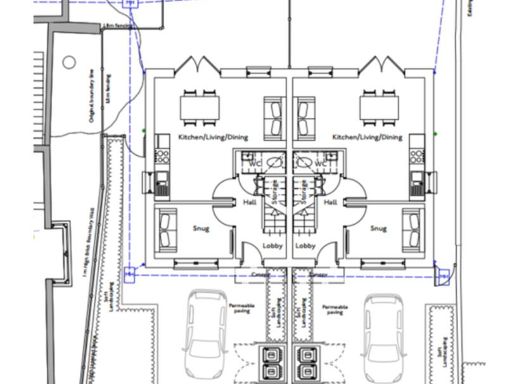
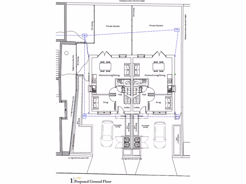
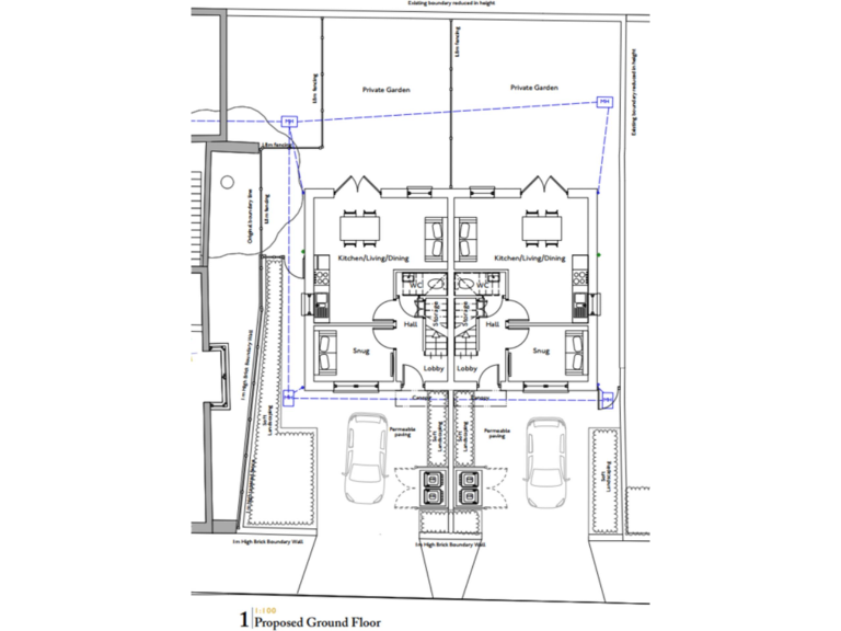
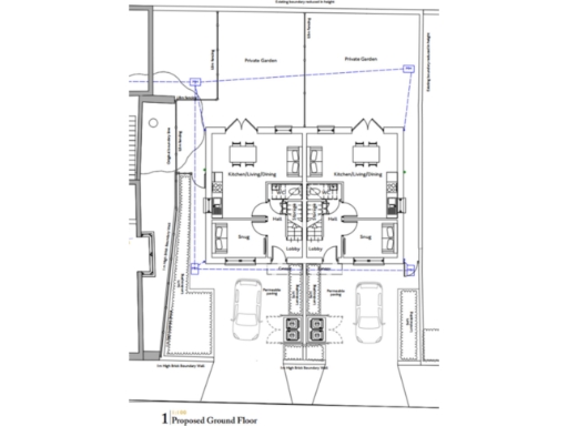
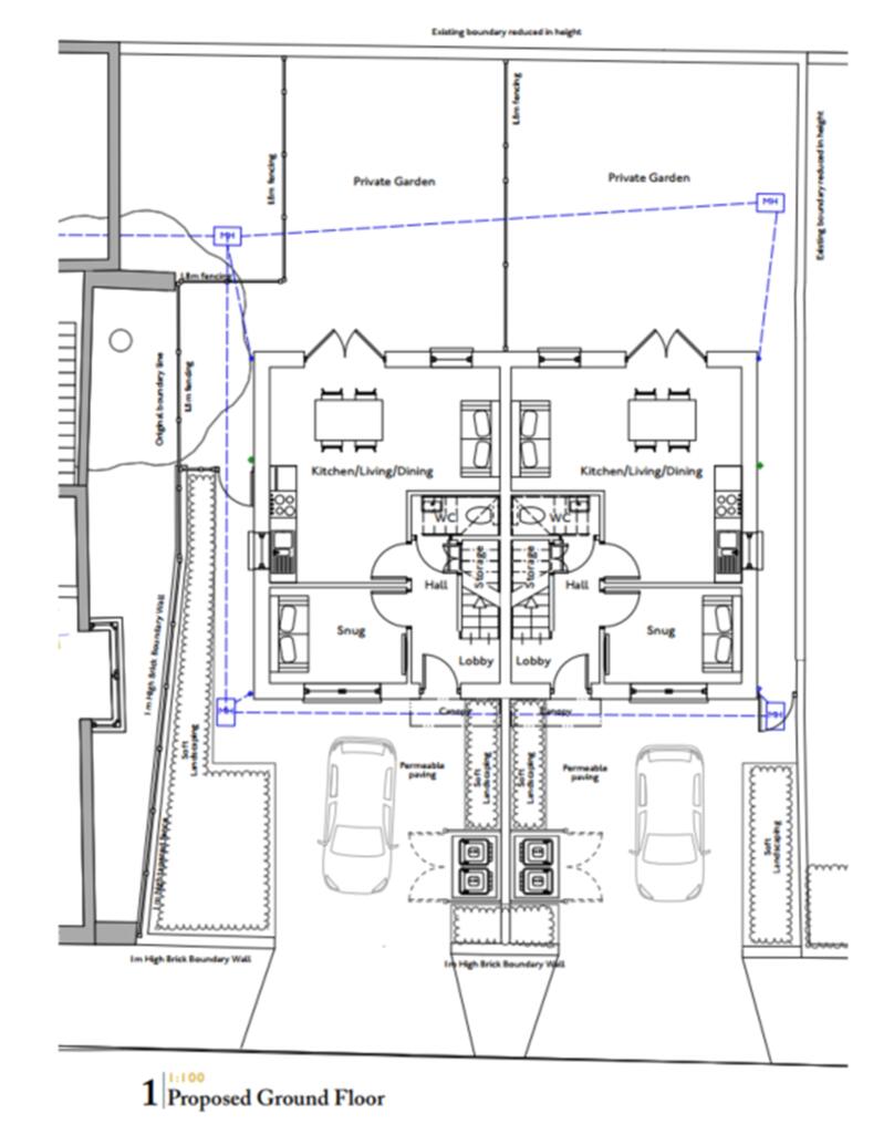
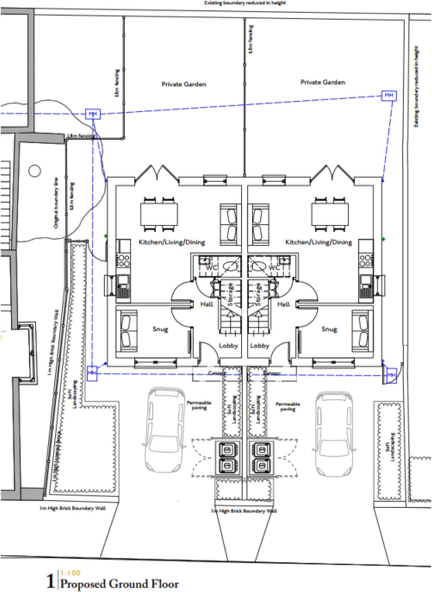
A compact urban development plot with planning approval for two 2-bedroom semi-detached homes (planning ref: 71991/FUL). The consented layout delivers open-plan ground-floor living, a separate study/playroom, guest cloakroom, two first-floor bedrooms, family bathroom, small rear gardens and off-street parking — a straightforward small-scheme build for a local contractor or buy-to-let investor.
The site is offered freehold and sits adjacent to number 2 Warrington Street in Fenton, within easy reach of schools and local amenities. Its modest footprint and simple two-unit design reduce build complexity and shorten build times compared with larger schemes, potentially speeding route-to-market for lettings or resale.
Buyers should be aware of material local challenges: the immediate area is classed as very deprived with very high crime rates, and the plot currently contains derelict structures and overgrowth that will require clearance and basic site preparation. The plot is small and urban, limiting garden sizes and external amenity.
This is a pragmatic opportunity for a small-to-medium builder, investor or developer seeking a low-unit, quick-turn redevelopment in Stoke-on-Trent. Full planning details are available on the Stoke-on-Trent planning portal (ref 71991/FUL). Site inspection is from the public highway; purchasers should carry out their own site survey and due diligence on local market demand and remediation costs.
Land for sale in Stonor Street, Cobridge, Stoke On Trent, ST6 3HJ, ST6 — £1,000,000 • 53 bed • 53 bath • 1125 ft²
Land for sale in Land Off Church Lane, Newcastle-under-Lyme ST5 6EB, ST5 — £550,000 • 5 bed • 1 bath
Land for sale in Land At Woodhouse Street, Stoke - On - Trent, ST4 — £550,000 • 1 bed • 1 bath
Land for sale in Bagnall Road, Stoke on Trent, ST2 — £500,000 • 1 bed • 1 bath • 12197 ft²
Land for sale in Land off Gravelly Bank, Stoke-on-Trent, ST3 — £395,000 • 5 bed • 2 bath
Land for sale in Church Lane, Stoke on Trent, ST10 — £95,000 • 1 bed • 1 bath • 4356 ft²


























































