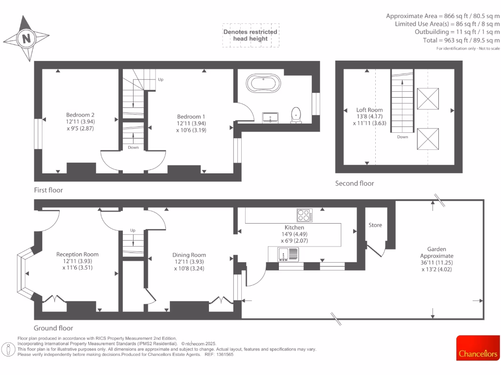
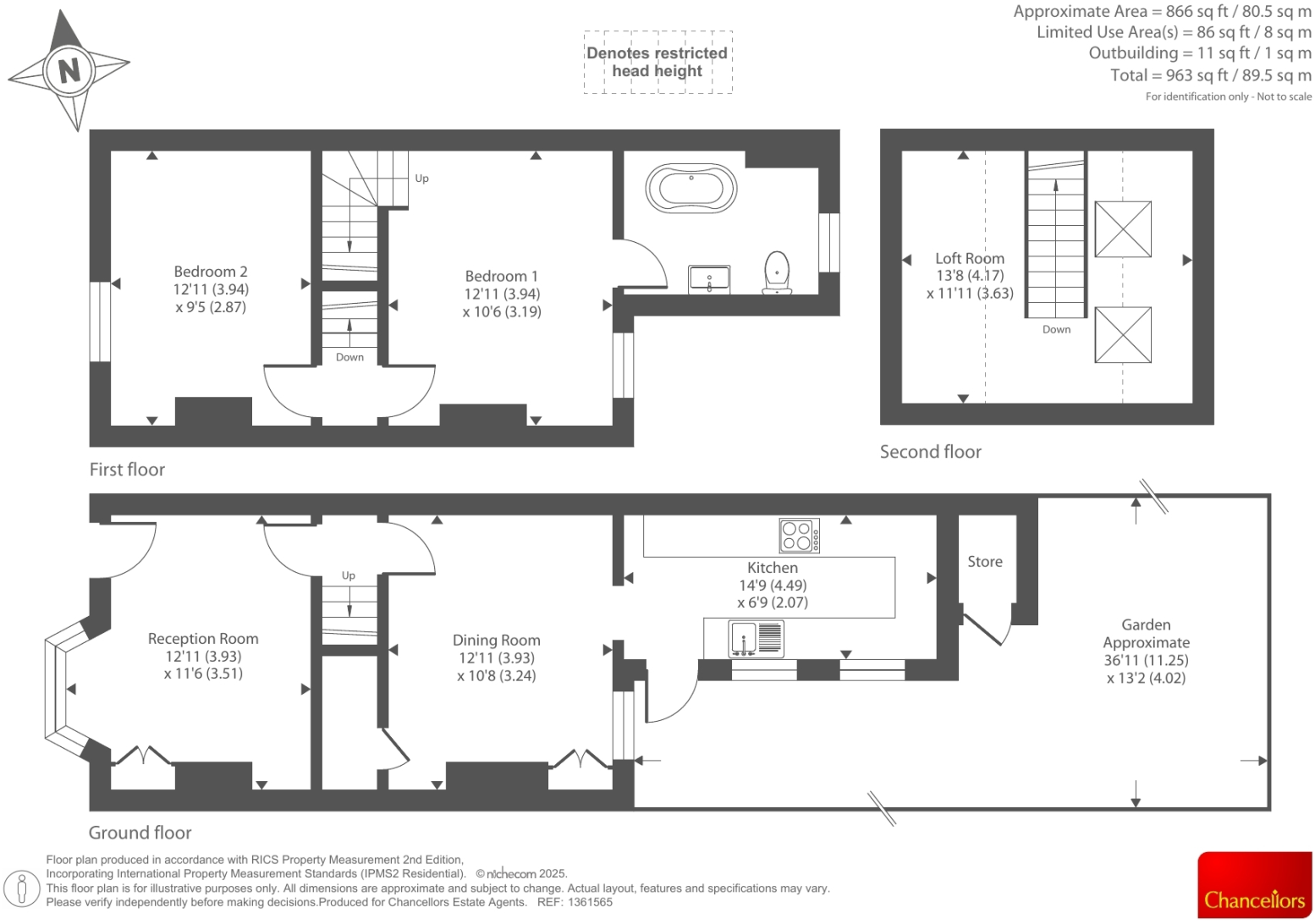
Recently renovated two-bedroom home near Chesham town amenities.
Two double bedrooms plus useful loft room for storage or study
Bay-front living room with period fireplace and natural light
Modern fitted kitchen and contemporary family bathroom
Double glazing and gas central heating throughout
Short walk (around one mile) to town centre and train station
Solid brick walls assumed uninsulated — consider insulation work
Small rear garden with rear access; limited external space
Single bathroom only; loft needs work to be full bedroom
This period two-bedroom terrace blends Victorian character with recent modern refurbishment, suited to growing families seeking space near Chesham town centre. The living room's bay window and fireplace provide charm, while the contemporary kitchen and double glazing give day-to-day comfort and lower immediate maintenance needs.
Accommodation includes two double bedrooms, a family bathroom and an additional loft room that adds flexible space for storage, a home office or occasional guest use. The property benefits from gas central heating and a compact, low-maintenance rear garden with rear access.
Practical points are straightforward: the house sits on a small plot and has solid brick walls that are assumed uninsulated, which may affect energy efficiency unless upgraded. There is a single bathroom and loft space that may require conversion works to become a full third bedroom. Council tax is moderate, and the location is about a mile from the town centre and train station, with highly rated local schools nearby.
3 bedroom terraced house for sale in Bellingdon Road, Chesham, Buckinghamshire, HP5 — £610,000 • 3 bed • 2 bath • 1678 ft²
3 bedroom terraced house for sale in Chesham, Buckinghamshire, HP5 — £400,000 • 3 bed • 1 bath • 946 ft²
3 bedroom terraced house for sale in Berkhampstead Road, Chesham, HP5 — £550,000 • 3 bed • 1 bath • 1172 ft²
3 bedroom terraced house for sale in Chesham, Buckinghamshire, HP5 — £550,000 • 3 bed • 2 bath • 1459 ft²
3 bedroom terraced house for sale in Eskdale Avenue, Chesham, HP5 — £425,000 • 3 bed • 3 bath • 985 ft²
5 bedroom terraced house for sale in Chesham, Buckinghamshire, HP5 — £600,000 • 5 bed • 1 bath • 1805 ft²






















































































