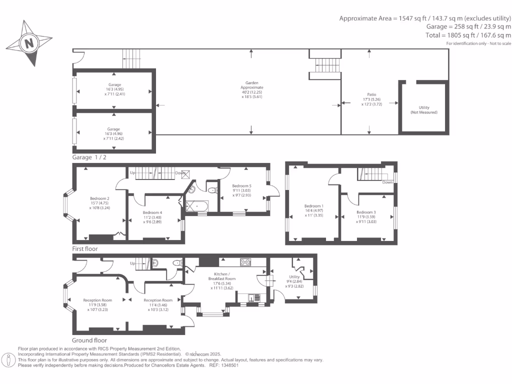
Spacious family home with garage and close-to-town convenience.
- Five bedrooms across three floors, large period rooms
- High ceilings and bay windows provide strong character
- Double garage to rear — rare for terraced properties
- Front and rear gardens with patio and lawn
- Single family bathroom for five bedrooms (noted drawback)
- Solid brick walls likely lack modern cavity insulation
- Above-average council tax; maintenance and updating likely
- Excellent mobile signal and fast broadband speeds
A substantial five-bedroom Victorian terraced home positioned within easy walking distance of Chesham town centre and the station, this property offers generous period rooms across three floors and a rare double garage to the rear. High ceilings, bay windows and large reception space give immediate family appeal and flexible living arrangements for home working. Broadband is fast and mobile signal excellent, supporting modern demands.
Practical strengths include a front and rear garden, separate utility and cloak room, and mains gas heating with radiator system. The house sits in a very affluent area close to several highly rated schools, including two grammar schools ranked in the top 10% — a strong draw for families.
Buyers should note this is a solid-brick, early 20th-century build likely without modern cavity insulation, and there is only one family bathroom for five bedrooms. Council tax is above average and the layout may benefit from updating in places; these are realistic maintenance and improvement considerations for incoming owners.
Overall this is a characterful, roomy family home with clear potential to modernise and reconfigure to suit contemporary family life, particularly attractive to buyers wanting space, location and a private garage in Chesham.
3 bedroom terraced house for sale in Chesham, Buckinghamshire, HP5 — £550,000 • 3 bed • 2 bath • 1459 ft²
3 bedroom terraced house for sale in Bellingdon Road, Chesham, Buckinghamshire, HP5 — £625,000 • 3 bed • 2 bath • 1678 ft²
2 bedroom terraced house for sale in Broad Street, Chesham, HP5 — £325,000 • 2 bed • 1 bath • 775 ft²
2 bedroom terraced house for sale in White Hill, Chesham, HP5 — £425,000 • 2 bed • 1 bath • 857 ft²
2 bedroom terraced house for sale in Chesham, Buckingahamshire, HP5 — £350,000 • 2 bed • 1 bath • 638 ft²
4 bedroom semi-detached house for sale in Old Town, Chesham, HP5 — £700,000 • 4 bed • 1 bath • 1291 ft²


















































































