Extended four-bedroom home with garden and parking near shops, schools and transport.
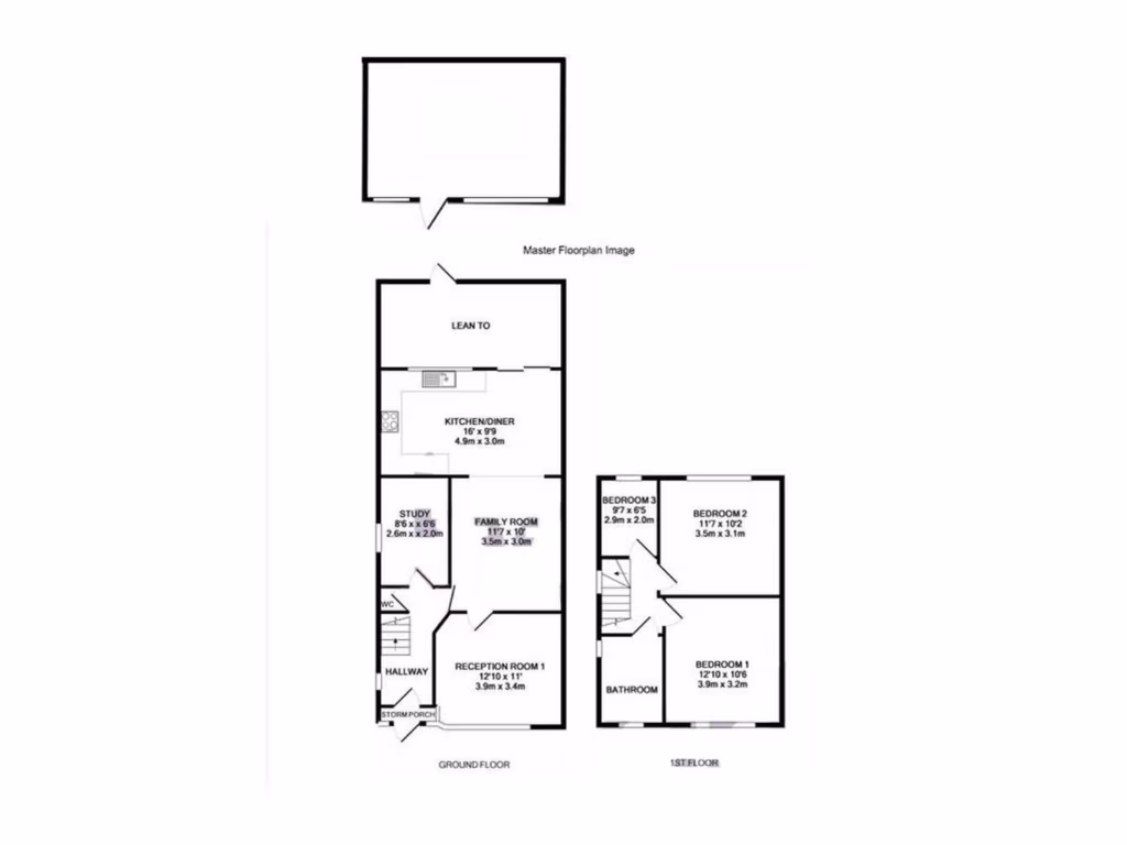
Extended layout with ground-floor bedroom/study option
This extended four-bedroom semi-detached home in North Hayes offers practical family accommodation with genuine scope to modernise. Ground-floor bedroom/study, open-plan living/dining and a conservatory give flexible living space, while a sizeable rear garden and off-street parking add everyday convenience.
The house is freehold, gas-central heated with double glazing and fast broadband/mobile signal — useful for home working. Local amenities are close by: Uxbridge Road, regular bus routes and several well-rated primary and secondary schools are within easy reach, making the location strong for families.
Buyers should note the property is small overall (approximately 783 sq ft) and shows external wear: dated concrete driveway, uneven pavement and some exterior fabric that needs attention. An outbuilding offers extra usable space but the house likely requires internal updating and could benefit from improved insulation (solid brick walls assumed uninsulated).
This home is a practical purchase for a growing family looking for location and potential, or for buyers willing to invest modest refurbishment to add value and modern comfort. The single family bathroom and early-20th-century construction are important factors when assessing renovation costs.
4 bedroom semi-detached house for sale in Derwent Drive, Hayes, UB4 — £685,000 • 4 bed • 2 bath • 974 ft²
4 bedroom semi-detached house for sale in Chatsworth Road, Hayes, UB4 — £650,000 • 4 bed • 2 bath • 1152 ft²
3 bedroom semi-detached house for sale in Park Lane, Hayes, UB4 — £550,000 • 3 bed • 1 bath • 1139 ft²
3 bedroom semi-detached house for sale in Marvell Avenue, Hayes, UB4 — £529,950 • 3 bed • 1 bath • 848 ft²
3 bedroom semi-detached house for sale in Westacott, Hayes, UB4 — £685,000 • 3 bed • 1 bath • 1109 ft²
2 bedroom semi-detached house for sale in Weymouth Road, Hayes, UB4 — £500,000 • 2 bed • 1 bath • 767 ft²






































































































