MK44 2JQ - Land for sale in Hatch Lane, Keysoe MK44

View on Property Piper

Land for sale in Hatch Lane, Keysoe MK44

Summary - Hatch Lane, Keysoe MK44 MK44 2JQ

1 bed 1 bath Land

**Standout Features:**
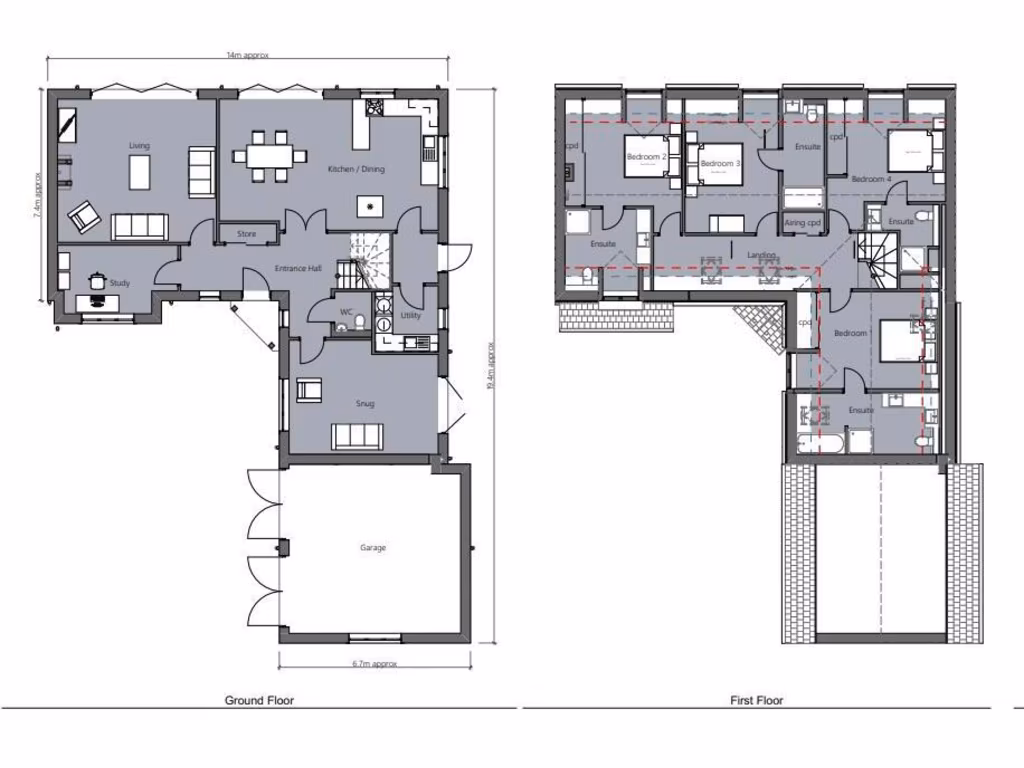
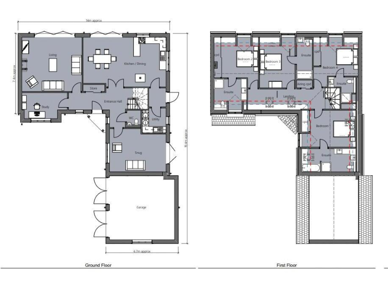
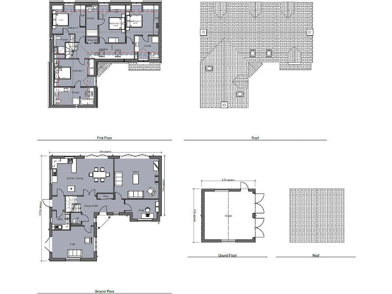
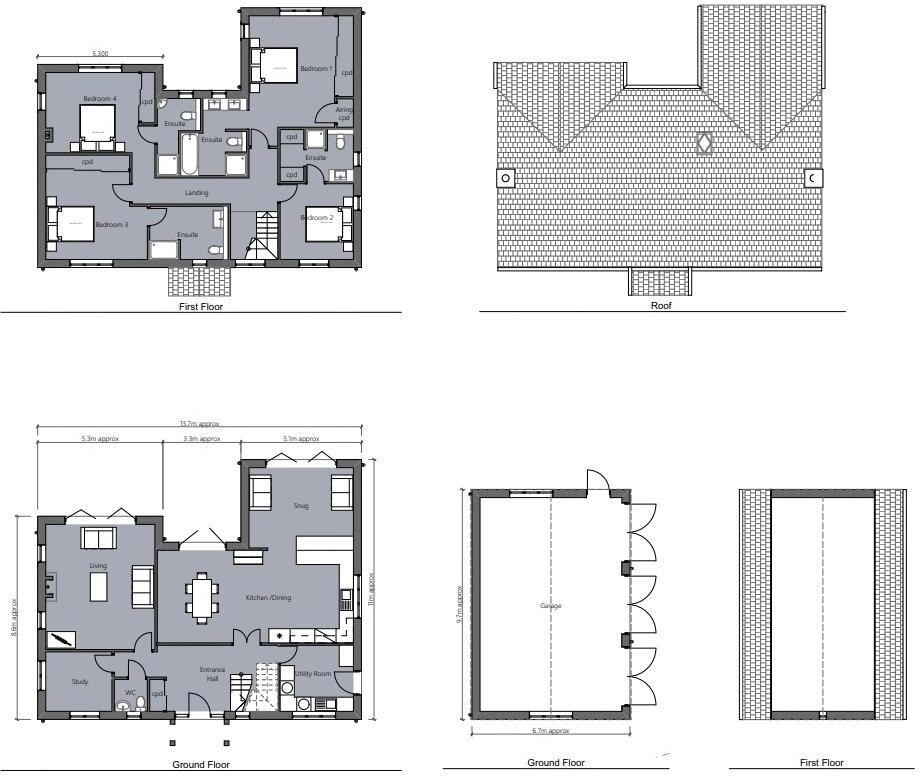
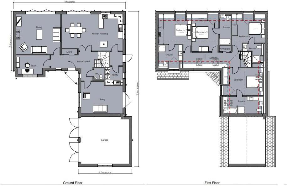
- Planning approved for the construction of three four-bedroom detached homes.
- En-suites in all bedrooms and four reception rooms.
- Double garage (one unit including a triple garage).
- Picturesque countryside location with views adjoining fields.
- Chain-free and new build opportunity.
- Located in the sought-after village of Keysoe, North Bedfordshire.

**Potential Concerns:**
- Community Infrastructure Levy (CIL) is applicable.
- Prospective buyers should confirm availability and connection costs for mains services.

This exceptional development opportunity in the tranquil village of Keysoe, MK44, combines both luxury and rural charm. With planning permission granted for three stunning four-bedroom detached homes, each complete with en-suites and premium finishes, this property promises to deliver modern living in an idyllic setting. Residents can look forward to generous spaces, including a spacious kitchen/diner, a snug/playroom, and bi-fold doors that seamlessly integrate indoor and outdoor living while overlooking beautifully landscaped gardens.

Set in an affluent area, this site presents immense potential for both investors and families, providing easy access to educational facilities like the well-rated Kymbrook Primary School. The neighborhood offers a peaceful retreat without sacrificing convenience, as Bedford and St. Neots boast an array of shopping and recreational options just a short drive away. This development opportunity won’t last long—position yourself in this idyllic setting and create homes designed for comfort and modern lifestyles with added flexibility for personal touches.

Property Details

Image Descriptions

Floorplan Description

Rooms

Textual Property Features

Detected Visual Features

Nearby Schools

Nearest Bars And Restaurants

,,,,}

Nearest General Shops

,,}

Nearest Grocery shops

,,}

Nearest Supermarkets

,,}

Nearest Religious buildings

,,}

Nearest Medical buildings

,,,}

Nearest Leisure Facilities

,,,,}

Nearest Tourist attractions

,,}

Nearest Train stations

,,,,}

Nearest Bus stations and stops

,,,,}

Nearest Hotels

,,}

Tags

Local Market Stats

Similar Properties

Meta

High Res Images

Compatible Images

Low res Images

Thumbnails

Raw Images

High Res Floorplan Images

Compatible Floorplan Images

Low res Floorplan Images

FloorplanImages Thumbnail

Raw Floorplan Images