**Key Features:**
- **Self-build Opportunity**: Planning permission granted for a four-bedroom detached home.
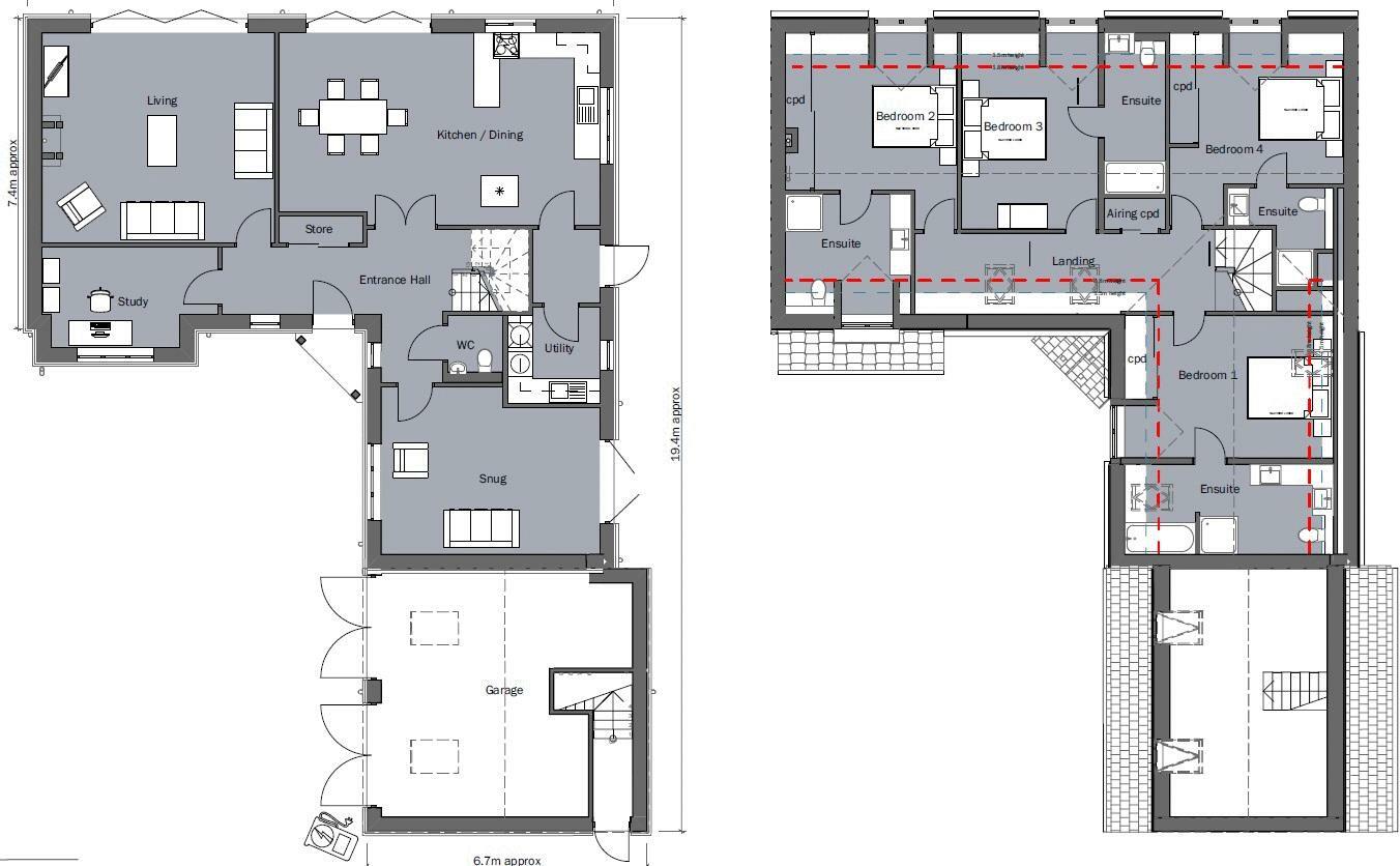
- **Spacious Design**: Includes en-suites for all bedrooms, four reception rooms, and a generous kitchen/diner.
- **Dual-Use Garage**: Double garage with a versatile studio above, ideal for a home gym or office.
- **Charming Setting**: Located in the picturesque village of Keysoe, surrounded by fields.
- **Rural Amenities**: Close to schools rated 'Good' by Ofsted, equestrian facilities, and tranquil countryside living.
Discover the ideal canvas for your dream home in Hatch Lane, Keysoe. This exclusive self-build plot offers a rare chance to create a spacious four-bedroom family residence in a select development of only three homes. With approved plans for a well-designed layout featuring en-suites in all bedrooms and four inviting reception rooms, the potential is boundless. The double garage, complete with a versatile studio above, presents opportunities to customize your living space further.
Keysoe's peaceful charm and community vibes offer the perfect backdrop, with well-rated primary schools nearby and excellent local equestrian facilities. While maintenance and build-out considerations should be taken into account, this property promises comfort, solitude, and the chance to tailor your environment to your family's needs. Don't miss out on this exceptional opportunity—seize your place in this thriving rural community today before it’s gone!















































