Private garden, garage and generous driveway close to local shops and schools.
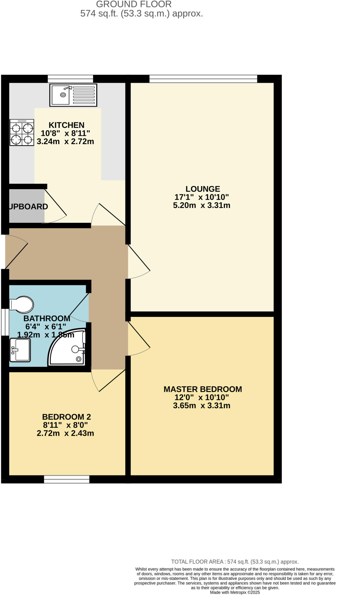
Two double bedrooms on a single-storey layout, ideal for easy living
Mature, private garden with scope for landscaping or extension (subject to checks)
Attached garage plus wide paved driveway for three to four cars
Compact interior (approx. 574 sq ft) — limited internal space
Mid-20th-century features and dated decor; needs modernisation
Freehold tenure, low crime area, average broadband but excellent mobile signal
Single-storey living in this two-bedroom semi-detached bungalow suits buyers looking to downsize without compromise. The layout is traditional and compact (approx. 574 sq ft), with a bright lounge, two double bedrooms and a single bathroom — all arranged on one level for easy day-to-day living.
Outside offers genuine extras: a mature, private garden, stone façade, attached garage and a wide paved driveway that fits three to four cars. The plot and parking are standout practical benefits for small-town fringe life, and the freehold tenure removes leasehold complexity.
The property retains mid-20th-century character and is well maintained, but interior finishes are dated and will benefit from modernization. Broadband is average though mobile signal is excellent. Located in an affluent, low-crime suburb with good local amenities and several well-rated primary and secondary schools nearby, it’s a convenient, calm spot for quieter living.
This bungalow represents a sensible, move-in-ready base with clear potential to add value through targeted updating. Buyers should note the compact overall size and single bathroom when considering space needs.
2 bedroom bungalow for sale in Mount Gardens, Cleckheaton, West Yorkshire, BD19 — £200,000 • 2 bed • 1 bath
2 bedroom bungalow for sale in Cedar Grove, Sutton In Craven, BD20 — £280,000 • 2 bed • 1 bath • 708 ft²
2 bedroom bungalow for sale in West View Close, Shipley, West Yorkshire, BD18 — £210,000 • 2 bed • 1 bath
2 bedroom semi-detached house for sale in Fairway Walk, Bradford, BD7 — £240,000 • 2 bed • 1 bath • 1008 ft²
2 bedroom semi-detached bungalow for sale in Newhall Drive, Bradford, BD6 — £220,000 • 2 bed • 1 bath • 724 ft²
2 bedroom semi-detached house for sale in Linden Rise, Long Lee , BD21 — £180,000 • 2 bed • 1 bath • 528 ft²


































































