Chain-free family home close to schools, shops and transport links.
No upward chain — immediate completion possible
Off-street parking and raised front lawn
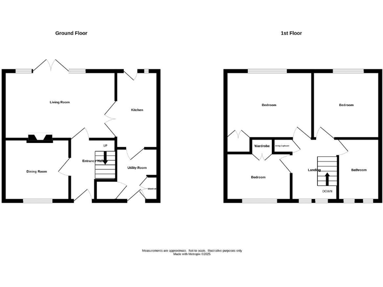
Three bedrooms with built-in storage in main bedroom
Single family bathroom only
Utility room with additional cupboard space and external access
Rear slabbed patio, raised garden and timber workshop
Double glazed and gas central heating, EPC C
Located in area with higher deprivation and average crime levels
This terraced three-bedroom home on Standhills Road is a practical, chain-free purchase for families or buyers seeking a straightforward move. The ground floor offers a front dining room, a lounge with French doors onto the rear garden, and a kitchen with integrated oven and hob. A handy utility room and off-street parking add everyday convenience.
Upstairs are three bedrooms and a single bathroom; the main and second bedrooms face the rear garden and include built-in storage. Outside the rear garden includes a slabbed patio, a raised planted area and a timber workshop — useful for storage or a small hobby space. The property is double glazed, gas centrally heated and rated EPC C.
This home presents sensible scope for light updating rather than a full renovation, allowing new owners to personalise finishes while keeping costs controlled. It sits close to schools, shops, parks and local transport links, making it practical for families and commuter buyers.
Buyers should note the house sits in an area with relatively high local deprivation and average local crime levels; nearby amenities and good schools partly offset that. The single bathroom and generally modest room sizes mean families who need extra space or en-suite facilities should factor potential reconfiguration into plans.
3 bedroom semi-detached house for sale in Kingsford Nouveau, Kingswinford, DY6 — £280,000 • 3 bed • 1 bath • 614 ft²
3 bedroom terraced house for sale in Marylyn, Broad Street, Kingswinford, DY6 — £250,000 • 3 bed • 1 bath • 815 ft²
3 bedroom semi-detached house for sale in Surrey Drive, Kingswinford, DY6 8HR, DY6 — £260,000 • 3 bed • 1 bath • 954 ft²
3 bedroom semi-detached house for sale in KINGSWINFORD, Bromley Lane, DY6 — £250,000 • 3 bed • 1 bath • 872 ft²
3 bedroom semi-detached house for sale in KINGSWINFORD, Stewart Road, DY6 — £270,000 • 3 bed • 1 bath • 1026 ft²
3 bedroom terraced house for sale in KINGSWINFORD, Greenfields Road, DY6 — £225,000 • 3 bed • 1 bath • 948 ft²






























































































