Three-bedroom home with garage, private garden and excellent school links.
No upward chain — vacant possession available
Three good-sized bedrooms, comfortable 1,026 sq ft layout
Requires updating throughout; modernisation recommended
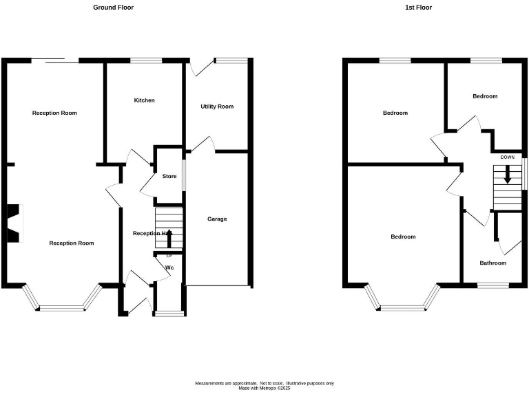
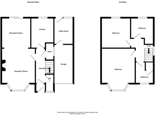
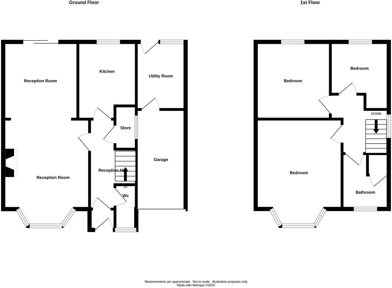
Full-depth lounge with dining area and ground-floor WC
Driveway parking plus single garage included
Good-sized private level rear garden, quiet cul de sac
Gas central heating and double glazing present
Council Tax Band C; freehold tenure
Set in a quiet cul de sac in Kingswinford, this three-bedroom semi offers a generous, traditional layout and a private rear garden. The property is freehold and available with no upward chain, making it suitable for buyers wanting a straightforward purchase and scope to personalise. Gas central heating, double glazing and a driveway plus single garage add practical value.
The accommodation includes a full-depth lounge with dining area, kitchen, lean-to utility, ground-floor WC and three good-sized bedrooms upstairs. Rooms are well proportioned throughout and the 1,026 sq ft footprint gives comfortable living space for a growing family. Local schools receive predominantly Good Ofsted ratings and the town centre amenities are within easy reach.
The house requires updating and improvement throughout — cosmetic modernisation and possible kitchen and bathroom renewal will be needed. EPC is TBA; buyers should factor renovation costs into their budget. Overall this is a solid mid-20th-century home on a decent plot, offering clear potential for value uplift with straightforward refurbishment.
3 bedroom semi-detached house for sale in KINGSWINFORD, The Rise, DY6 — £255,000 • 3 bed • 1 bath • 1005 ft²
3 bedroom semi-detached house for sale in KINGSWINFORD, Kingsley Road, DY6 — £283,000 • 3 bed • 1 bath • 923 ft²
3 bedroom semi-detached house for sale in KINGSWINFORD, Ridge Road, DY6 — £345,000 • 3 bed • 1 bath • 943 ft²
3 bedroom semi-detached house for sale in Kingsley Road, Kingswinford, DY6 — £280,000 • 3 bed • 1 bath • 713 ft²
3 bedroom semi-detached house for sale in KINGSWINFORD, Bromley Lane, DY6 — £250,000 • 3 bed • 1 bath • 872 ft²
3 bedroom semi-detached house for sale in KINGSWINFORD, Ridge Road, DY6 — £350,000 • 3 bed • 2 bath • 1074 ft²










































