**Standout Features:**
- 1-bedroom retirement apartment with no onward chain
- Located in the Carlton Court, a well-established retirement development
- Safe and secure living environment with an in-house manager and communal lounge
- Enjoys views of North Hill from a Juliet balcony
- Close to Minehead sea front and Blenheim Gardens
- Off-street parking available
**Notable Concerns:**
- High local crime rate
- Leasehold property with an annual ground rent of £450
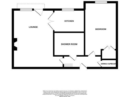
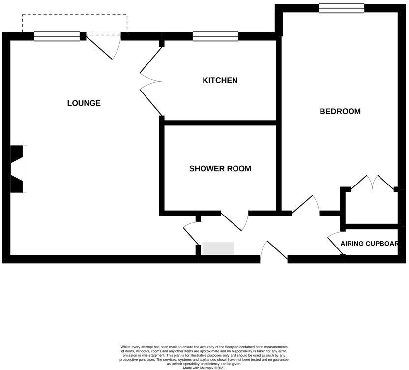
- Average-sized apartment (485 sq ft) may be restrictive for some
**Summary:**
Discover your peaceful retreat in this charming 1-bedroom retirement apartment located in the sought-after Carlton Court. Situated on the second floor, this well-presented home offers a cozy living space featuring a spacious lounge with traditional decor and French doors leading to a delightful Juliet balcony that provides scenic views toward North Hill. The compact, modern kitchen is equipped with essential appliances, while the shower room ensures convenience and comfort.
Part of a vibrant retirement community, residents enjoy exceptional amenities including a laundry room, residents lounge, and easy access to off-street parking. Carlton Court’s prime location, just a half mile from Minehead's stunning seafront and lush Blenheim Gardens, offers a tranquil lifestyle surrounded by nature and essential amenities.
While the property is chain-free, it is crucial to note the high local crime rate that may impact your living experience. The apartment's average size makes it ideal for retirees or anyone looking for low-maintenance living, and with a competitive price of £89,000, it presents a secure investment opportunity in a welcoming community. Don’t miss out on this unique chance to embrace a comfortable lifestyle in Minehead—properties like this won’t last long!
1 bedroom apartment for sale in Blenheim Road, Minehead, TA24 — £115,000 • 1 bed • 1 bath • 448 ft²
1 bedroom apartment for sale in Blenheim Road, Minehead, TA24 — £105,000 • 1 bed • 1 bath • 485 ft²
1 bedroom apartment for sale in Carlton Court, Blenheim Road, Minehead, TA24 — £95,000 • 1 bed • 1 bath • 458 ft²
1 bedroom flat for sale in Carlton Court, Blenheim Road, Minehead, TA24 — £100,000 • 1 bed • 1 bath • 446 ft²
1 bedroom apartment for sale in Carlton Court, Minehead, TA24 — £100,000 • 1 bed • 1 bath • 453 ft²
2 bedroom apartment for sale in Blenheim Road, Minehead, TA24 — £189,950 • 2 bed • 1 bath • 732 ft²


































