Move-in-ready third-floor retirement flat with lift and communal facilities near the seafront.
Third-floor retirement flat with lift access
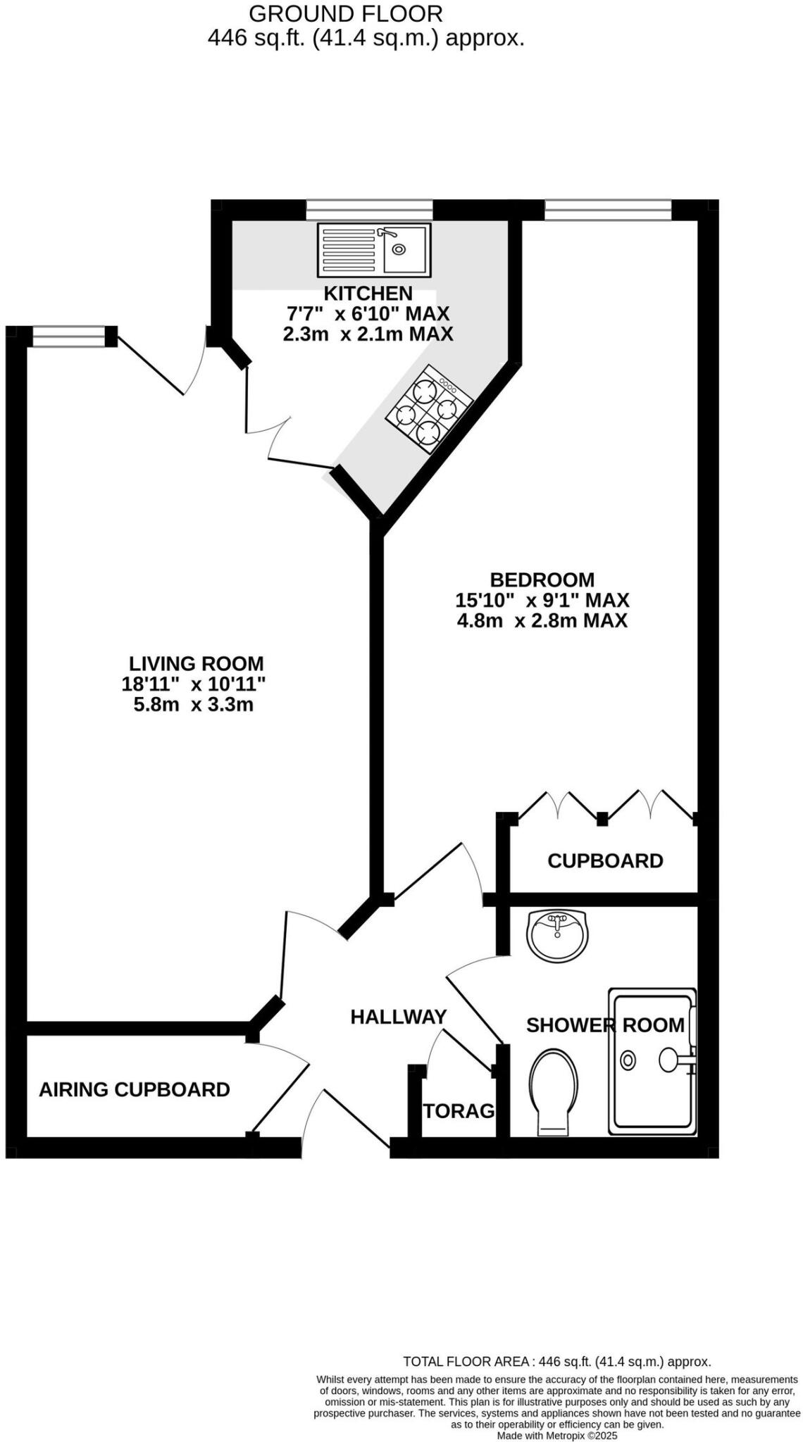
This immaculate third-floor retirement apartment in Carlton Court offers low-maintenance, move-in-ready living for the over-60s. Freshly painted with brand-new carpets, the bright living/dining room opens to a Juliet balcony and the double bedroom includes built-in mirrored wardrobes. The modern shower room has a safe walk-in shower, and the practical kitchen sits neatly off the main living space.
Residents benefit from a lift to all floors and excellent communal facilities including a lounge, laundry, guest suite and tended gardens. An active social programme and on-site support (Careline alarm service) create a friendly, secure environment for independent retirement living. The apartment is offered chain free and is centrally located, a short walk from shops, bus routes, the GP surgery and the seafront.
There are some material points to note: the home is leasehold (service charge £3,249.52 pa; ground rent £375 pa) and heating is by electric storage heaters. Flood risk in the area is classed as medium and local crime levels are high. Broadband speeds are average. Overall this is a comfortable, well-presented retirement flat suited to someone wanting convenience, community and easy access to Minehead’s amenities.
1 bedroom apartment for sale in Carlton Court, Blenheim Road, Minehead, TA24 — £95,000 • 1 bed • 1 bath • 458 ft²
1 bedroom apartment for sale in Blenheim Road, Minehead, TA24 — £115,000 • 1 bed • 1 bath • 448 ft²
1 bedroom apartment for sale in Blenheim Road, Minehead, TA24 — £105,000 • 1 bed • 1 bath • 485 ft²
1 bedroom apartment for sale in Blenheim Road, Minehead, TA24 — £89,000 • 1 bed • 1 bath • 485 ft²
2 bedroom apartment for sale in Blenheim Road, Minehead, TA24 — £189,950 • 2 bed • 1 bath • 732 ft²
1 bedroom apartment for sale in Carlton Court, Minehead, TA24 — £100,000 • 1 bed • 1 bath • 453 ft²


















































































