Permissioned six-home redevelopment on a large Victorian plot close to town.
Planning granted for 4 townhouses plus 2 new-build 2-bed semis
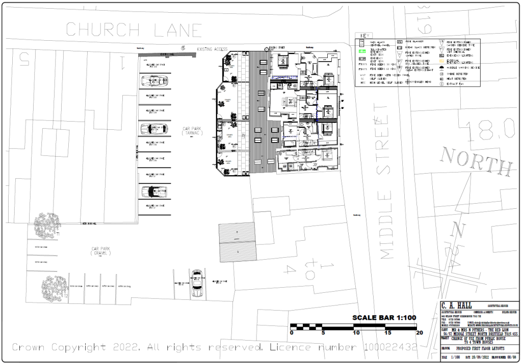
A rare town-centre development plot in the heart of Driffield with planning consent in place for six homes. The site includes a substantial three‑storey Victorian former pub and large rear grounds (approx 0.29 acres) suitable for conversion plus two new‑build semi‑detached houses. Permissions already granted reduce early-stage planning risk and allow a mix of three- and four‑bed townhouses and two 2‑bed semis, each with rear gardens and on‑site parking.
The scheme benefits from freehold title, mains services reportedly connected, fast broadband and excellent mobile signal. The location is close to local shops, schools rated Good, and town amenities, and sits in an affluent area with strong demand for family housing and town-centre living. The property is not in a flood-risk area and offers significant scope for developers or builders to realise value through relatively straightforward conversion and new build.
Buyers should note material considerations: the courtyard and garage areas are derelict and will need clearance and resurfacing; parts of the building and cellar will require renovation to residential standards; a maintenance-only right of way exists across the yard; and the sale is subject to VAT (which may affect SDLT). There is also a recorded high local crime rate that may influence marketing and insurance costs.
This is a practical opportunity for an investor or developer seeking a centrally located, permissioned residential scheme. Early inspection is recommended to assess build costs and confirm service connections and VAT treatment with your advisors.
Land for sale in Lockwood Street, Driffield, East Riding of Yorkshire, YO25 — £900,000 • 1 bed • 1 bath
Land for sale in Riverside Close, Driffield, East Riding Of Yorkshire, YO25 — POA • 1 bed • 1 bath • 28750 ft²
Leisure facility for sale in Mishka Pub & Blue Bell Riverside Restaurant , Riverhead, Driffield, East Riding of Yorkshire, YO25 — £280,000 • 1 bed • 1 bath • 4074 ft²
2 bedroom terraced house for sale in Eastgate North, Driffield, East Riding of Yorkshire, YO25 6DY, YO25 — £135,000 • 2 bed • 1 bath • 1093 ft²
4 bedroom terraced house for sale in George Street, Driffield, YO25 — £210,000 • 4 bed • 1 bath • 1220 ft²
3 bedroom terraced house for sale in Taylors Field, Driffield, YO25 — £210,000 • 3 bed • 1 bath • 737 ft²






































































































