Refurbished hospitality space with event capacity and strong town-centre location.
- Recent extensive refurbishment throughout public and kitchen areas
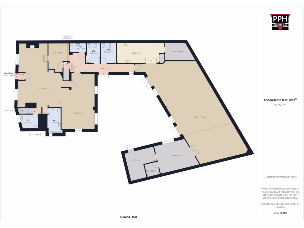
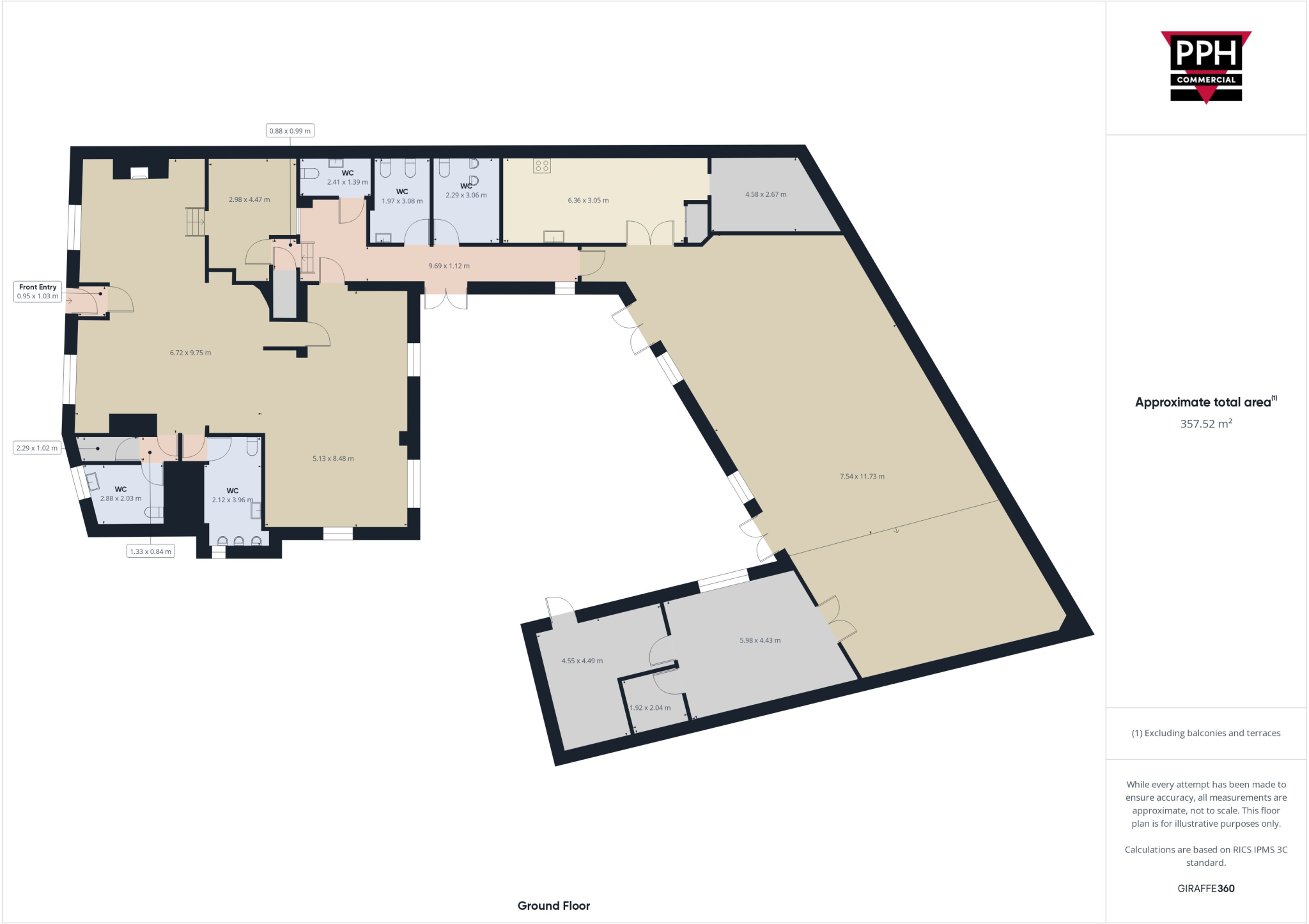
- Ground floor bar (≈60 covers) and restaurant (≈70 covers)
- Private function room and courtyard beer garden for events
- Riverside position close to Driffield centre and transport links
- Energy Performance Certificate rating C (fair efficiency)
- VAT payable on the asking price; tenure currently unspecified
- On-street parking only; no dedicated parking or loading bay
- Marketing lists four-bed living accommodation; confirm layout (data conflict)
A prominent two-storey riverside pub and restaurant in central Driffield, recently refurbished and offered with a revised price of £280,000 plus VAT. The ground floor provides a front bar (circa 60 covers) and a fully fitted restaurant/kitchen to the rear (circa 70 covers), plus a private function room and a courtyard beer garden – strong assets for hospitality operators looking for walk-in trade and events. The building sits close to the town centre and transport links, with excellent mobile signal and fast broadband supporting modern hospitality tills and bookings.
The premises have an Energy Performance Certificate rating of C and show good overall presentation following extensive refurbishment. There is private living accommodation across upper floors which has been described as four bedrooms in the marketing text, but supplied data fields also include conflicting bedroom figures (one bedroom) — prospective buyers should confirm the exact residential layout on inspection. Tenure is not specified and VAT is applicable to the asking price, both material matters for buyers and lenders.
Practical considerations: on-street parking only, no flood risk, and the property lies in a very low-crime, affluent area. The building’s size (around 4,074 sq ft / 378.6 sq m) and L-shaped layout create flexible spaces for dining, events or alternative commercial uses, though any change of use or larger business plans should be checked with local planning. The recent renovation reduces immediate capital works but buyers should budget for ongoing operational fit-out, fixtures and compliance checks for licensing, hygiene, and accessibility.
Residential development for sale in Middle Street North, Driffield, YO25 6SS, YO25 — £370,000 • 1 bed • 1 bath • 5728 ft²
Pub for sale in West Lutton, Malton, North Yorkshire YO17 — £325,000 • 3 bed • 1 bath
2 bedroom end of terrace house for sale in Adelphi Street, Driffield, YO25 6RF, YO25 — £120,000 • 2 bed • 1 bath • 917 ft²
3 bedroom end of terrace house for sale in Riverside, Driffield, North Humberside, YO25 — £170,000 • 3 bed • 1 bath • 761 ft²
4 bedroom terraced house for sale in New Road, Driffield, YO25 — £195,000 • 4 bed • 1 bath • 1091 ft²
4 bedroom semi-detached house for sale in Eastgate South, Driffield YO25 6LW, YO25 — £190,000 • 4 bed • 2 bath • 1199 ft²


























































































