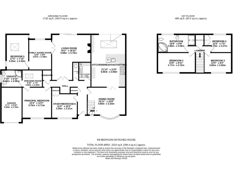
Flexible 5/6-bed layout with large garden and annexe potential.
Ground-floor principal bedroom with dressing room and en-suite
Set on a very large plot in semi-rural Meriden, this extended 5/6-bedroom detached house offers flexible family living and strong indoor‑outdoor appeal. Ground-floor principal suite with dressing room and en‑suite, an L-shaped lounge with feature fireplace, plus a large open-plan kitchen/breakfast/sitting area make the house well suited to multigenerational families or those wanting annexe-style accommodation. Bi-fold/ sliding doors connect principal living spaces directly to a deep patio and extensive rear gardens with field views.
The layout includes a separate dining room, study (or potential bedroom six), bedroom four with adjoining games/living room, and three further bedrooms with family bathroom upstairs — excellent for families wanting separate adult and children’s zones. Practical features include a garage, large driveway, EV charging point, double glazing updated after 2002, and mains gas central heating.
Buyers should note this is a mid‑century house (constructed c.1950–1966) that has been extended over time and will benefit from ongoing maintenance or selective updating to suit modern tastes. Broadband speeds are reported as slow in the area, and council tax is in an expensive band F. Any purchaser should verify planning/building regulation history for extensions and confirm details with their solicitor.
3 bedroom bungalow for sale in Back Lane, Meriden, West Midlands, CV7 — £495,000 • 3 bed • 1 bath • 1535 ft²
4 bedroom link detached house for sale in Hathaway Close, Balsall Common, Coventry, West Midlands, CV7 — £575,000 • 4 bed • 1 bath • 1577 ft²
6 bedroom detached house for sale in Benton Green Lane, COVENTRY, CV7 — £985,000 • 6 bed • 1 bath • 2056 ft²
5 bedroom detached house for sale in Brooklands Way, Marston Green, Birmingham, B37 — £525,000 • 5 bed • 2 bath • 1392 ft²
4 bedroom detached house for sale in Kenilworth Road, Balsall Common, CV7 — £725,000 • 4 bed • 3 bath • 2279 ft²
4 bedroom detached house for sale in Stoneton Crescent, Balsall Common, West Midlands, CV7 — £575,000 • 4 bed • 2 bath • 1340 ft²










































































































































