Spacious five-bedroom residence with energy-efficient systems and landscaped gardens.
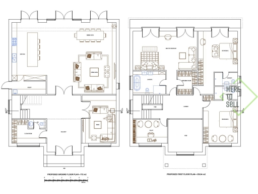
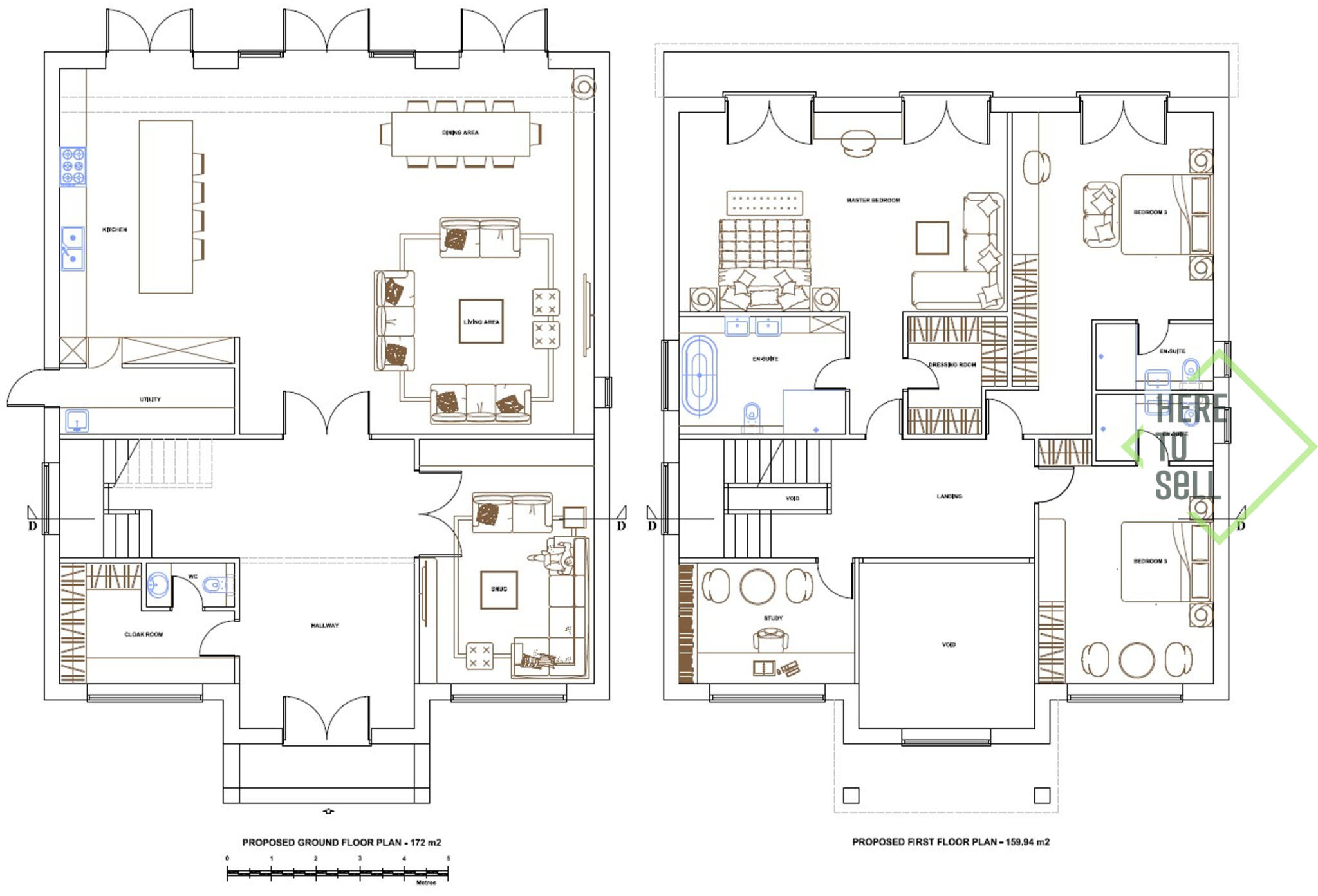
Five double bedrooms including grand principal suite with dressing area
Approximately 5,500 sq ft of high‑ceilings, flexible family living
Bespoke luxury kitchen, underfloor heating and smart‑home system
Energy-efficient features: air source heat pump, superior insulation, solar ready
Large landscaped private rear garden and integral double garage
New build/freehold with developer warranties—check completion details
Located near excellent schools and good rail links to central London
Local concerns: higher crime rate and area classified as deprived
This brand-new, freehold detached house offers about 5,500 sq ft of flexible living space across three floors, designed for large-family life and entertaining. The specification is high: bespoke kitchen, underfloor heating throughout, smart-home automation, air source heat pump, superior insulation and solar readiness to reduce running costs.
The well‑planned layout includes an open-plan kitchen/dining/living area with bi-fold doors to a professionally landscaped rear garden, a grand principal suite with walk‑in dressing room, and a versatile attic-level room suitable as a fifth bedroom, media room or home office. Integral double garage and private driveway add practical parking and storage.
Location benefits include strong local schools, close rail links to central London and mature, tree-lined streets that create a suburban feel within Greater London. Buyers should note local conditions: the neighbourhood records higher crime rates and sits in an area classed as deprived, which may concern some purchasers and affect insurance and resale dynamics.
Offered at a premium price reflecting size and finish, this property will particularly suit affluent families seeking space, energy-efficient modern systems and high-spec interiors. Because it is newly built/off-plan, buyers should review final completion details and developer warranties before exchange.
5 bedroom detached house for sale in Spring Court Road | Chase View, EN2 — £1,499,999 • 5 bed • 4 bath • 2448 ft²
5 bedroom house for sale in Hadley Road, Enfield, EN2 — £1,295,000 • 5 bed • 5 bath • 2069 ft²
4 bedroom semi-detached house for sale in Hadley Road, Enfield, EN2 — £1,145,000 • 4 bed • 3 bath • 2086 ft²
5 bedroom detached house for sale in Spring Court Road, Enfield, EN2 — £1,499,999 • 5 bed • 4 bath • 1902 ft²
5 bedroom detached house for sale in Waterfall Road, London, N14 — £1,875,000 • 5 bed • 5 bath • 3517 ft²
5 bedroom detached house for sale in The Ridgeway, Botany Bay, Enfield, EN2 — £2,500,000 • 5 bed • 6 bath • 5367 ft²






















































































