**Standout Features:**
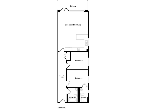
- Luxury ground floor apartment with stunning countryside and coastal views
- Open plan living area with high gloss fitted kitchen and quality appliances
- Two double bedrooms with luxurious ensuite and main bathrooms
- Private terrace with wooden decking and glass panels
- Allocated guest parking and additional visitor spaces
- Turn-key holiday investment opportunity, currently let for bookings
**Summary:**
Seize the chance to own this superb luxury ground floor apartment perched above Maenporth Beach, blending modern elegance with coastal charm. With stylish features like underfloor heating, engineered oak flooring, and a spacious open plan living area that seamlessly extends to a private terrace, this property is perfect for both relaxation and entertaining. The dual aspect windows flood the space with natural light while offering panoramic views of the countryside and coastline.
Boasting two double bedrooms—each designed for comfort, including a principal suite with an ensuite—this apartment provides an ideal getaway or rental investment. Residents will appreciate the secure entry system, allocated parking, and well-maintained grounds. Located just minutes from the beach, this turn-key property is currently a successful holiday let, making it a fantastic opportunity for investors or families looking for a relaxing retreat. Don't miss out on this exceptional offering; properties like this are rarely available for long!
2 bedroom apartment for sale in West Bay Maenporth Road, Maenporth, Falmouth, Cornwall, TR11 — £387,000 • 2 bed • 2 bath • 849 ft²
2 bedroom flat for sale in West Bay Maenporth Road, Maenporth, TR11 — £280,000 • 2 bed • 2 bath • 849 ft²
2 bedroom apartment for sale in Maenporth, The Crags, TR11 — £249,000 • 2 bed • 1 bath • 568 ft²
2 bedroom apartment for sale in Maenporth, The Ridges, TR11 — £255,000 • 2 bed • 1 bath • 545 ft²
3 bedroom apartment for sale in Maenporth, Lower Stables, TR11 — £330,000 • 3 bed • 2 bath • 1063 ft²
4 bedroom penthouse for sale in Maenporth, Falmouth, TR11 — £400,000 • 4 bed • 3 bath • 1768 ft²






































































































































