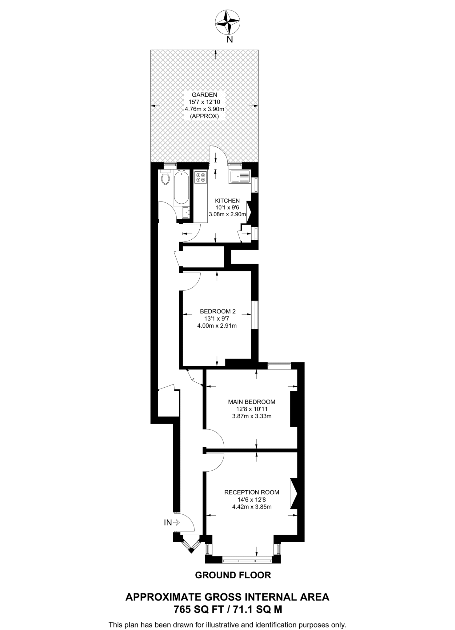
Characterful two-bed flat with private garden and long lease near Brixton.
Two double bedrooms and large reception with period features
Set back on Dumbarton Road and equally convenient for Brixton and Clapham, this two-bedroom period maisonette offers a bright, characterful home with private outdoor space. The reception room retains period features and high ceilings, while the kitchen and dining area open onto a rear garden — ideal for weekend entertaining or first-time buyers wanting outside space in SW2.
At about 765 sq ft, the layout provides two double bedrooms, a bathroom and ample built-in storage. Practical advantages include a long lease (144 years), chain-free sale and a below-average annual service charge of £750. Excellent mobile signal and fast broadband make it well suited to hybrid working, and regular public transport links give an easy commute into central London.
There is genuine scope to add value through sympathetic updating: the property has solid brick walls (likely uninsulated) and double glazing of unknown age, so buyers should consider thermal improvements and potential modernisation. It is leasehold, has one bathroom and sits in an area with above-average crime rates — factors to weigh alongside the home’s period charm and private garden.
Local schools range from outstanding to good, and the nearby Brixton Village, shops and green spaces add lifestyle appeal. This maisonette will suit buyers seeking a character home with renovation potential and strong transport links.
2 bedroom maisonette for sale in Dumbarton Road, London, Brixton, SW2 — £500,000 • 2 bed • 1 bath • 800 ft²
2 bedroom maisonette for sale in Dumbarton Road, Brixton Hill, SW2 — £575,000 • 2 bed • 1 bath • 800 ft²
2 bedroom flat for sale in Dumbarton Road, London, SW2 — £575,000 • 2 bed • 1 bath • 900 ft²
3 bedroom maisonette for sale in Lyham Road, Brixton, SW2 — £500,000 • 3 bed • 1 bath • 945 ft²
2 bedroom maisonette for sale in Dumbarton Road, Brixton, SW2 — £575,000 • 2 bed • 1 bath • 883 ft²
2 bedroom flat for sale in Brixton Hill, London, SW2 — £390,000 • 2 bed • 1 bath • 630 ft²


















































































































