Well-presented three-bedroom home with conservatory, garage and parking near town amenities.
Three-bedroom semi-detached family home
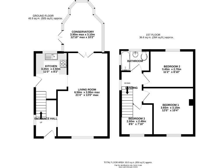
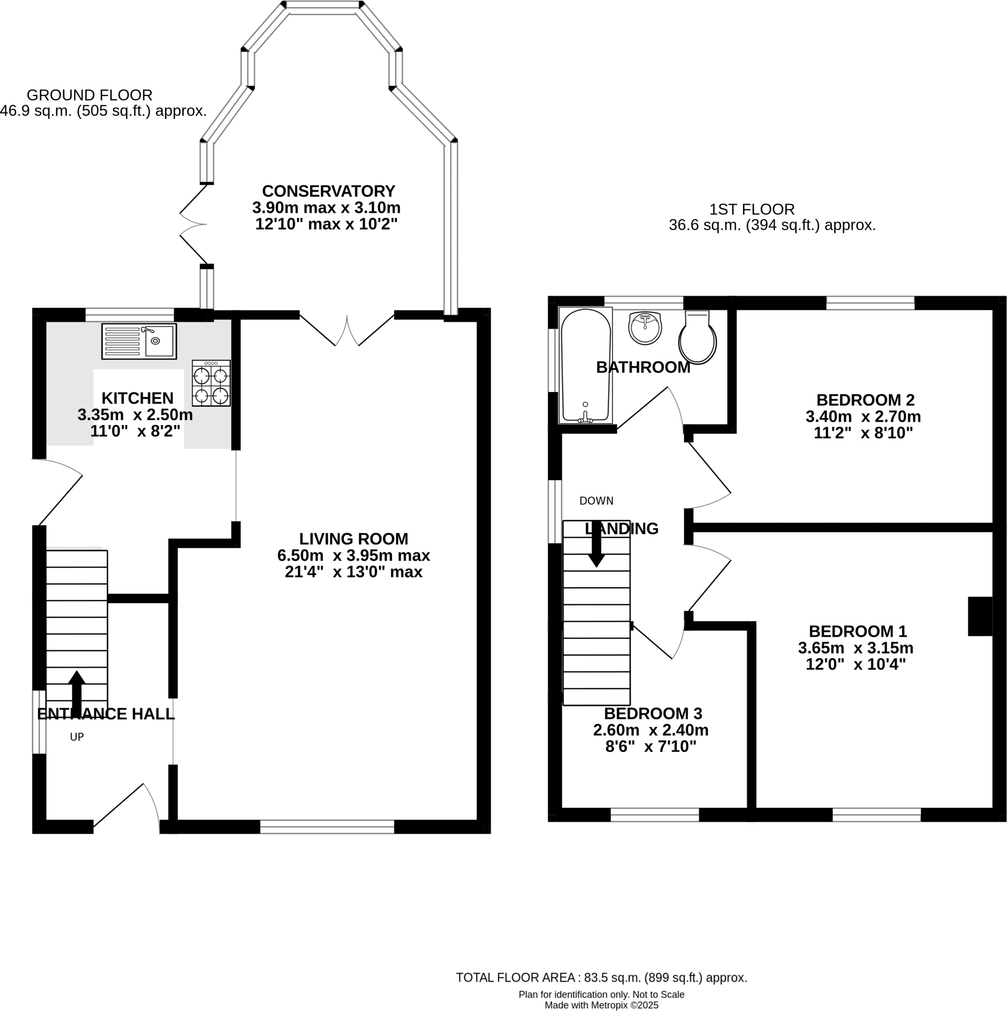
A practical three-bedroom semi-detached home on Woodlands Avenue, set on the edge of Talgarth within Brecon Beacons National Park. The house offers a large living room, conservatory ideal for a childrens playroom, a modern-fitted kitchen and off-street parking with a single garage. The property is freehold and connected to mains services with gas central heating.
This home will suit a growing family seeking straightforward accommodation in a quiet small-town setting with low local crime and nearby shops and schools. The listing describes generous garden space and driveway parking, offering useful outdoor space and storage for family needs.
Buyers should note a few practical points: there is a single bathroom only, broadband and mobile signals are average, and the wider area is classed as very deprived which may affect local services and resale dynamics. Internally the property may require some modernisation depending on buyer expectations. Council Tax is moderate (Band D). Professional inspection and an in-person check of garden size and condition are recommended before purchase.
3 bedroom semi-detached house for sale in Westfields, Talgarth, Brecon, Powys, LD3 — £235,000 • 3 bed • 1 bath • 812 ft²
3 bedroom semi-detached house for sale in Woodlands Avenue, Talgarth, Brecon, LD3 — £275,000 • 3 bed • 1 bath • 863 ft²
3 bedroom semi-detached house for sale in Court Meadow, Bronllys, Brecon, Powys, LD3 — £280,000 • 3 bed • 2 bath • 989 ft²
3 bedroom terraced house for sale in Honddu Court, Brecon, Powys, LD3 — £225,000 • 3 bed • 2 bath • 1066 ft²
3 bedroom semi-detached house for sale in Trenewydd, Brecon, LD3 — £290,000 • 3 bed • 1 bath • 1014 ft²
3 bedroom semi-detached house for sale in Ffynnon Dewi, Brecon, LD3 — £250,000 • 3 bed • 1 bath • 868 ft²


























































