Freehold 0.15-acre plot with full planning for a large family home..
- Approximately 0.15 acres (c. 608 m2) building plot
- Full planning permission for six-bedroom, three-storey house
- Detailed consent for c. 3,200 sq ft home plus garage
- Utilities connected nearby; water in the path
- Nutrient neutrality credits already purchased
- Around 16m road frontage (stms)
- Requires full construction: build costs and project management
- Council tax in area described as expensive
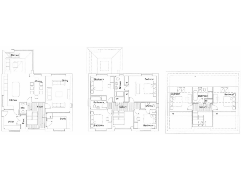
A rare, clearly defined freehold building plot in sought-after Drayton, offered with full planning permission for a substantial three-storey six-bedroom family house and garage. The site extends to approximately 0.15 acres (c. 608 m2) with around 16m road frontage and utility connections available on site; nutrient neutrality credits have already been purchased to satisfy planning conditions.
This plot suits a self-builder or developer seeking a large detached home in a quiet residential setting close to local amenities, schools and with easy access to the Broadland Northway. Detailed permission covers a 3,200 sq ft (stms) property over three storeys; the design can be adapted (for example, reducing attic bedrooms to create a four-bedroom layout).
Buyers should budget for full construction costs, build programme management and any specification upgrades; the site is a blank slate with no existing dwelling. Council tax in the area is noted as expensive and the approved scheme is substantial, so ongoing running costs for the completed house are likely to be higher than average.
Practical benefits include very low local crime, fast broadband and excellent mobile signal, plus no identified flood risk. The location is in a very affluent, largely rural white-collar area, offering privacy, mature greenery and established neighbouring properties which help preserve value.
Land for sale in Taverham Road, Drayton, Norwich, NR8 — £350,000 • 1 bed • 1 bath
Land for sale in Drayton, NR8 — £215,000 • 1 bed • 1 bath
Land for sale in Drayton, NR8 — £200,000 • 1 bed • 1 bath
Land for sale in Drayton, NR8 — £200,000 • 1 bed • 1 bath
Land for sale in Townhouse Road, Costessey, Norwich, NR8 — £300,000 • 1 bed • 1 bath • 1938 ft²
Land for sale in Silfield Road, Wymondham, NR18 — £85,000 • 1 bed • 1 bath • 1157 ft²


























