Ready-to-build fenced plot with planning consent and services in situ.
Full planning permission granted (ref 2023/0327) for detached chalet
Mains services supplied to the plot; ready for construction
Private driveway, off-street parking and enclosed gardens included
Freehold sale at £70,000 for a large plot (approx. 1,157 sq ft internal figure)
No flood risk; fast broadband and average mobile signal
No guaranteed easement for access; purchase separately from Saffron Housing
Local area classified as deprived; high proportion of renting households
Buyer to allow for construction costs and obtain legal advice
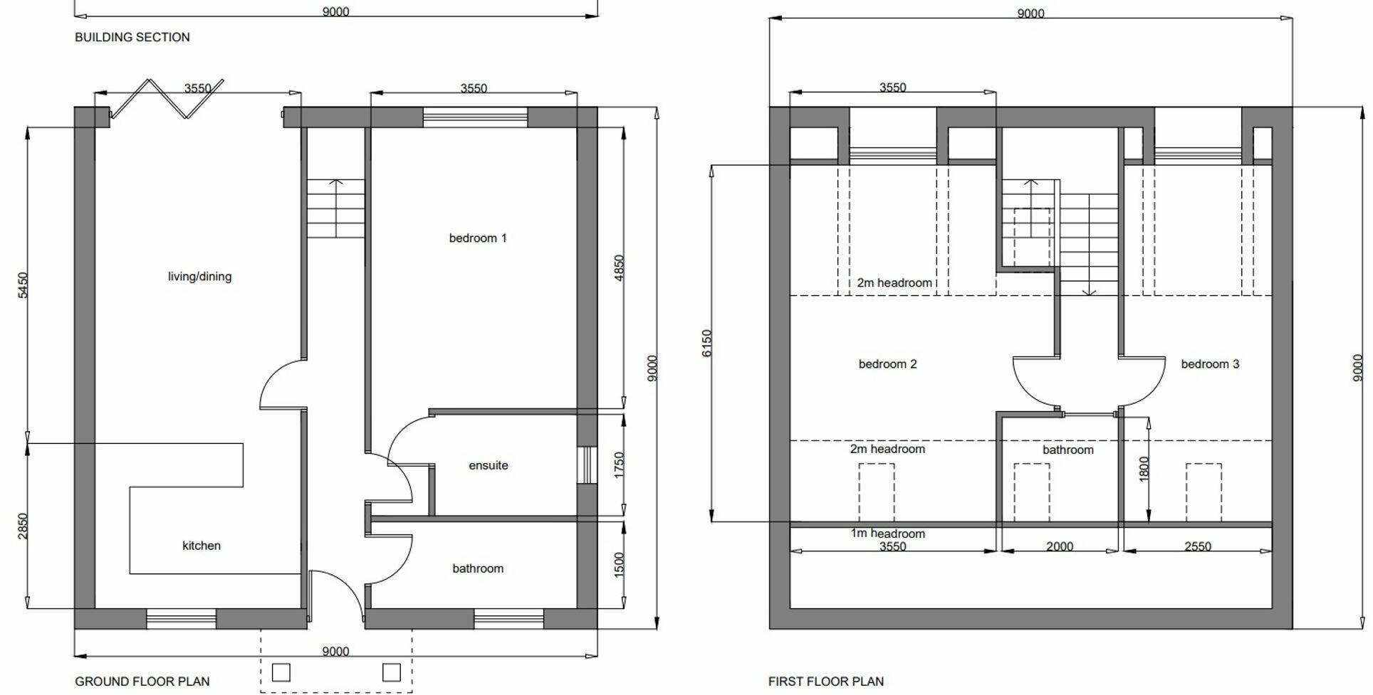
This fully fenced plot on Silfield Road comes with full planning permission (ref: 2023/0327) for a detached chalet-style home and mains services already installed. The approved design provides ground-floor living with an open-plan sitting/dining/kitchen, a ground-floor bedroom with en-suite, family bathrooms and two further first-floor bedrooms — a flexible layout suited to families or a buy-to-build investor.
The site is tucked away on a private driveway with off-street parking to the front and gardens to the side and rear. The land is sold freehold at £70,000 and benefits from double glazing, central heating provisions shown on the plans, and no flood risk. Local broadband is fast and several well-rated primary and secondary schools are within easy reach, including Wymondham College (Outstanding).
Important matters: the plot currently does not have indefinite legal easement over the neighbouring parcel for access. An easement and an additional strip of land can be purchased separately from Saffron Housing — buyers should obtain legal advice before exchange. The area scores as deprived and the immediate neighbourhood profile indicates a high proportion of renting households, which may affect resale profile.
This is a predominantly developer/investor opportunity or an owner-builder project: planning, services and a clear build footprint substantially reduce early-stage risk, but purchasers must allow for construction costs, potential local market sensitivity and legal costs to secure access. EPC information for the proposed dwelling is listed as D for guidance.
Land for sale in West Carr Road, Attleborough, NR17 — £250,000 • 1 bed • 1 bath • 1100 ft²
Plot for sale in West Carr Road, NR17 — £250,000 • 1 bed • 1 bath
Land for sale in Norwich Road, New Costessey, Norwich, NR5 — £200,000 • 1 bed • 1 bath • 2000 ft²
Land for sale in Townhouse Road, Costessey, Norwich, NR8 — £300,000 • 1 bed • 1 bath • 1938 ft²
Plot for sale in Gurney Road, New Costessey, Norwich, NR5 — £575,000 • 3 bed • 1 bath
Land for sale in William's Park, London Road, Wymondham, Norfolk, NR18 — £400,000 • 1 bed • 1 bath


























