Ready-to-move property on a large plot with garage, PV and west-facing garden.
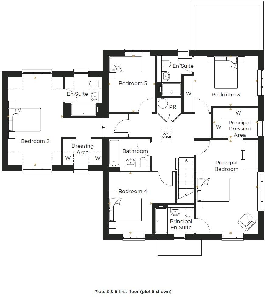
Five bedrooms, three ensuite bathrooms and large family bathroom
Open-plan kitchen/family room with two sets of doors to west garden
Underfloor heating to ground floor, PV solar panels and EV charge point
Integral double garage with automatic door and utility room access
Huge private plot with generous rear garden and countryside views
Show home availability – ready to view and move into immediately
Reduced-price incentive only for reservations before 30th November
Some images are CGI/show-home photos; council tax band not supplied
This five-bedroom detached new build on a large plot in Ickford is designed for comfortable family living and immediate occupation. The show home standard finish includes an open-plan kitchen/family area with sliding doors to a westerly-facing garden, a large lounge, and flexible ground-floor space that can serve as dining or study. Practical features include an integral double garage with automatic door, utility room access, underfloor heating to the ground floor, PV solar panels and an EV charging point — all reducing running costs. Upstairs the principal bedroom includes a dressing area and en suite, two further bedrooms have en suites, and two bedrooms share a large family bathroom — ideal for a growing household or visiting guests. The development sits in a quiet village setting near countryside trails, good local schools and transport links to Thame, Aylesbury and London. The home is available to buy and move into immediately and comes with a 10-year guarantee plus a two-year builder warranty. Notes and buyer considerations: a new reduced price applies only to reservations before 30th November with completion by 31st January. Some images are of the show home or CGI and are illustrative. Council tax band is not provided; mobile signal is average. These factual points are given to help buyers make an informed viewing decision.
5 bedroom detached house for sale in Rectory Woods, Ickford, Aylesbury, Buckinghamshire, HP18 — £1,075,000 • 5 bed • 3 bath • 2306 ft²
5 bedroom detached house for sale in Rectory Woods, Ickford, Aylesbury, Buckinghamshire, HP18 — £1,100,000 • 5 bed • 3 bath • 2306 ft²
4 bedroom detached house for sale in Rectory Woods, Ickford, Aylesbury, Buckinghamshire, HP18 — £820,000 • 4 bed • 3 bath • 1781 ft²
3 bedroom link detached house for sale in Rectory Woods, Ickford, Aylesbury, Buckinghamshire, HP18 — £500,000 • 3 bed • 2 bath • 1019 ft²
3 bedroom detached house for sale in Rectory Woods, Ickford, Aylesbury, Buckinghamshire, HP18 — £495,000 • 3 bed • 2 bath • 950 ft²
4 bedroom detached house for sale in Rectory Woods, Ickford, Aylesbury, Buckinghamshire, HP18 — £725,000 • 4 bed • 2 bath • 1418 ft²






















































