Low-maintenance, contemporary over-50s home near Plymouth amenities and green walks.
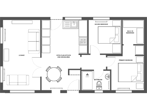
- Brand new 2-bedroom park home, 35'x18' (approx. 630 sq ft)
- Open-plan living with fully fitted modern kitchen
- Exclusive over-50s community with landscaped plots
- Pet friendly with ramped, single-storey access
- Council Tax Band A; no flood risk recorded
- Site fee £245 pcm; service charge approx. £2,940 p.a.
- Virtual freehold on leased land; may be non-mortgageable
- Show-home images/optional extras may differ on site
This brand-new 35'x18' park home offers low-maintenance, single-storey living designed for over-50s seeking community and convenience. The open-plan lounge, dining area and modern fitted kitchen create a light, practical living space, with two bedrooms and a shower room laid out for easy day-to-day use. At about 630 sq ft, rooms are modest but well specified for contemporary retirement living.
Set on a popular residential park north of Plymouth, the development sits in landscaped grounds with pleasant local walks and quick access to essential amenities, healthcare and transport links. The site is pet friendly and ramped access supports mobility needs. Council Tax is low (Band A) and there is no recorded flood risk for the area.
Important practical details: the home sits on leased land under a virtual freehold arrangement and site fees are payable (listed at £245 pcm; service charge shown as £2,940 average). Park homes of this type are often non-mortgageable—buyers should seek legal advice and check park rules, the Mobile Homes Act 2013 details, and any resale conditions. Manufacturer’s show-home images may include optional extras and may not exactly match the on-site home.
This property suits downsizers or retirees wanting a contemporary, low-upkeep home in a community setting. It delivers modern fixtures and easy access to local facilities, but prospective buyers must factor in site charges, tenure specifics and potential restrictions before committing.
1 bedroom park home for sale in Plymouth, Devon, PL6 — £125,000 • 1 bed • 1 bath • 432 ft²
2 bedroom park home for sale in Sycamore Way, Glenholt Park, Plymouth, PL6 — £192,500 • 2 bed • 1 bath • 630 ft²
2 bedroom mobile home for sale in Unity Close, Glenholt Park, Plymouth, PL6 — £170,000 • 2 bed • 1 bath • 494 ft²
2 bedroom park home for sale in Saltash, Cornwall, PL12 — £190,000 • 2 bed • 2 bath • 800 ft²
2 bedroom park home for sale in Callington, Cornwall, PL17 — £140,000 • 2 bed • 1 bath • 720 ft²
1 bedroom park home for sale in Elm Road, Glenholt Park, Plymouth, PL6 — £125,000 • 1 bed • 1 bath • 354 ft²


























































































