Low-maintenance, community-focused living close to Plymouth and countryside walks.
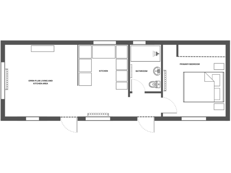
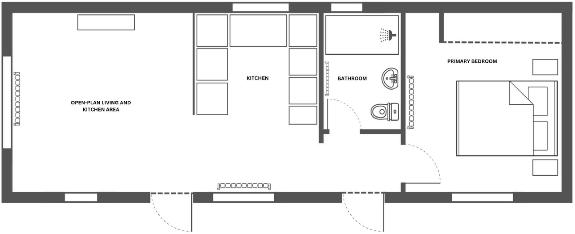
- One double bedroom; open-plan living and kitchen
- Small footprint: approximately 432 sq ft (36'x12')
- Vacant, unfurnished and ready to occupy
- Modern fitted kitchen with integrated appliances
- Exclusive over-50s community, landscaped park setting
- Site fee £245/month (approx £2,940/year); reviewed annually
- Virtual freehold on leased land; typically not mortgageable
- Manufacturer images used; on-site spec may differ
A compact, easy-to-manage one-bedroom park home set within a well-kept, over-50s residential park about four miles north of Plymouth. The 36'x12' Prestige Minuet offers an open-plan living, dining and kitchen area, a double bedroom and a shower room — ready to occupy and unfurnished. Its modern finishes and integrated kitchen appliances give a light, contemporary feel ideal for simple, low-maintenance living.
The park sits in a landscaped, community-focused setting with pleasant woodland nearby, good local services and a Park & Ride for direct links into the city. Practical strengths include excellent mobile signal, fast broadband and a very low council tax band, which together keep running costs modest.
Important considerations: the home sits on leased land under a virtual freehold arrangement and park rules apply. Site fees are currently £245 per month (around £2,940pa) and are reviewed annually in line with CPI. Park homes are usually not mortgageable — seek specialist advice and check the Mobile Homes Act 2013 and park conditions before committing. Images used may be manufacturer’s show-home photos and the on-site specification could differ.
2 bedroom park home for sale in Plymouth, Devon, PL6 — £192,500 • 2 bed • 1 bath • 630 ft²
1 bedroom park home for sale in Elm Road, Glenholt Park, Plymouth, PL6 — £125,000 • 1 bed • 1 bath • 354 ft²
2 bedroom park home for sale in Sycamore Way, Glenholt Park, Plymouth, PL6 — £192,500 • 2 bed • 1 bath • 630 ft²
1 bedroom park home for sale in Elm Croft, Glenholt Park, Plymouth, PL6 — £85,000 • 1 bed • 1 bath • 359 ft²
2 bedroom park home for sale in Callington, Cornwall, PL17 — £140,000 • 2 bed • 1 bath • 720 ft²
3 bedroom park home for sale in Leigham Manor Drive, Plymouth, PL6 — £270,000 • 3 bed • 1 bath • 883 ft²






















































