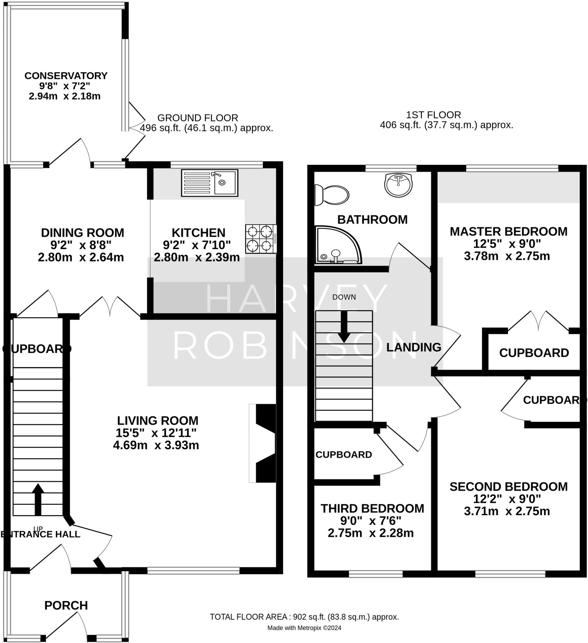
- Three bedrooms with efficient family layout
- Lounge, kitchen/diner and conservatory to rear garden
- Small enclosed rear garden, low maintenance
- Garage providing parking or storage
- Single family bathroom only
- Built c.1970; likely needs modernisation
- Cavity walls assumed with no confirmed insulation
- Excellent transport links and very low local crime
A practical three-bedroom mid-terraced home in Hartford, offering 902 sq ft of flexible family space and a garage. The ground floor provides a generous lounge, kitchen/diner and conservatory that opens to a small, enclosed rear garden — ideal for young families or a first-time buyer wanting easy outdoor access. The property benefits from good transport links, fast broadband and very low local crime, making daily commuting simple.
Built in the early 1970s, the house retains mid-century character but will suit buyers prepared to modernise. Notable positives include mains gas central heating, double glazing (install date unknown) and useful built-in storage across two floors. The layout is efficient and the small plot keeps maintenance low, while the garage adds valuable off-street storage or parking.
Buyers should note this is an older build with assumed cavity walls and no confirmed cavity insulation; some updating to heating, decor and potential roof/porch maintenance may be required. There is a single family bathroom only. Measurements are approximate; fittings and services have not been tested and should be independently checked.
For first-time buyers and investors, the house represents affordable entry into a well-connected, affluent area close to Huntingdon town centre, schools and rail links to London. With some sympathetic updating this property offers clear value and straightforward living for a compact family household.
3 bedroom terraced house for sale in Drake Close, Hartford, PE29 — £230,000 • 3 bed • 1 bath • 1064 ft²
3 bedroom terraced house for sale in Prospero Way, Hartford, Huntingdon, Cambridgeshire, PE29 — £200,000 • 3 bed • 1 bath • 755 ft²
2 bedroom terraced house for sale in Kite Close, Hartford, Huntingdon, PE29 1UY, PE29 — £230,000 • 2 bed • 1 bath • 600 ft²
3 bedroom semi-detached house for sale in Hartford, Huntingdon, PE29 — £250,000 • 3 bed • 2 bath • 827 ft²
3 bedroom detached bungalow for sale in Desborough Road, Hartford, Huntingdon, PE29 — £300,000 • 3 bed • 1 bath • 837 ft²
3 bedroom end of terrace house for sale in Frobisher Close, HUNTINGDON, PE29 — £250,000 • 3 bed • 1 bath • 737 ft²






































