Single-storey home with garage, garden and great commuter links — ideal to renovate or downsize.
Three bedrooms on one level — practical for downsizers or families
Garage plus driveway parking; enclosed rear garden
No onward chain — faster completion possible
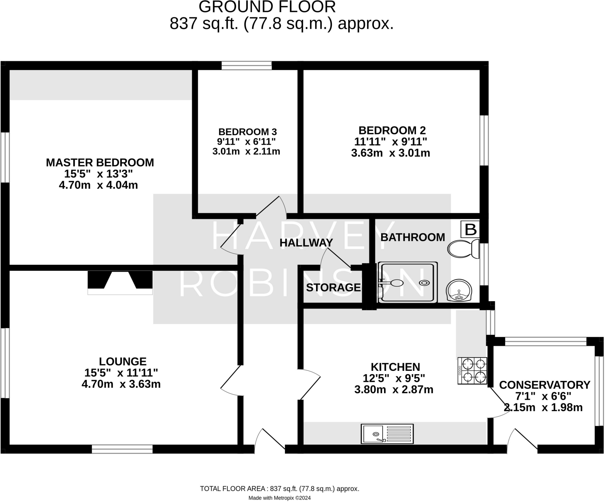
Approx. 837 sq ft — average sized bungalow
Single shower room only; may need reconfiguration for family needs
Interior largely dated (1960s–70s kitchen, patterned carpets) — requires modernisation
Good local schools and fast rail links to London and Cambridge
Freehold; low flood risk, low crime, fast broadband and excellent signal
This three-bedroom detached bungalow on Desborough Road offers single-storey living in a popular Hartford location, close to schools, shops and excellent transport links. The layout includes an entrance hall, lounge with fireplace, kitchen, conservatory, three bedrooms, shower room, garage and driveway — practical for family downsizers or those seeking a low-maintenance home. The property is offered with no onward chain, so a quicker move is possible.
The house sits on an enclosed rear garden and benefits from garage parking and a driveway. Local amenities, riverside walks and fast rail connections to London and Cambridge make the location a strong commuter choice. Nearby primary and secondary schools are rated Good, and the area shows low crime with fast broadband and excellent mobile signal.
Internally the bungalow shows its mid-20th century origins and will suit buyers ready to modernise. The living room, kitchen and conservatory retain dated finishes (1960s–70s kitchen units, patterned carpet and wallpaper) and updating is required to bring the property to contemporary standard. There is a single shower room so families should consider layout needs.
Overall this freehold, average-sized (approx. 837 sq ft) bungalow is a practical opportunity for downsizers, first-time buyers able to renovate, or investors after a refurbishment project in a well-connected, sought-after suburb.
2 bedroom detached bungalow for sale in Goldfinch Close, Hartford, PE29 — £325,000 • 2 bed • 1 bath • 1031 ft²
2 bedroom detached bungalow for sale in Sapley Road, Hartford, PE29 — £375,000 • 2 bed • 1 bath • 781 ft²
3 bedroom detached bungalow for sale in Desborough Road, Hartford, Huntingdon., PE29 — £385,000 • 3 bed • 1 bath • 891 ft²
3 bedroom detached house for sale in Mill Road, Hartford, Huntingdon, PE29 — £400,000 • 3 bed • 2 bath • 1224 ft²
2 bedroom bungalow for sale in Nelson Road, Hartford, Huntingdon, Cambridgeshire, PE29 — £350,000 • 2 bed • 1 bath • 1143 ft²
4 bedroom detached bungalow for sale in Desborough Road, Hartford, Huntingdon, PE29 1RN, PE29 — £380,000 • 4 bed • 1 bath • 1348 ft²










































