Contemporary home with solar, garage and sweeping farmland views.
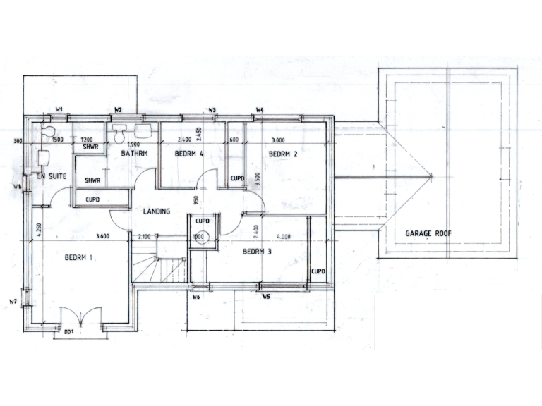
Four bedrooms with open-plan kitchen/dining and large glazed rear doors
A recently completed four-bedroom detached house set on a large roadside plot with expansive rural views across rolling farmland. The home is part of a small new development and comes with a single garage, private driveway parking and a manageable rear garden, making it suitable for family living in a peaceful hamlet setting. Key sustainability features include solar PV with battery storage, an EV charging point and a Mitsubishi Ecodan air-source heat pump; these support lower running costs and an Energy Rating around B.
The property is sold with allowances for kitchens and bathrooms, giving purchasers the opportunity to personalise finishes and layouts to their taste. Internally the house offers open-plan kitchen/dining with large glazed doors to the garden and a traditional two-storey layout across approximately 533 sq ft of accommodation. The location is semi-rural — about four miles from Hay-on-Wye — so it combines countryside tranquillity with access to nearby town amenities.
Buyers should note practical limitations: there is only one bathroom for four bedrooms, broadband speeds are slow and there is no mobile signal on site. Drainage is via a private shared sewage treatment plant; services, appliances and installations are untested and should be independently verified. The development sits in a very remote, low-crime area with limited local services, which suits buyers prioritising privacy and landscape over immediate connectivity.
4 bedroom detached house for sale in Rhosgoch, Builth Wells, Powys, LD2 — £585,000 • 4 bed • 1 bath • 604 ft²
4 bedroom detached house for sale in Glasbury, Hereford, Powys, HR3 — £525,000 • 4 bed • 3 bath • 1400 ft²
4 bedroom detached house for sale in Cae Llewelyn, Cilmery, Builth Wells, Powys, LD2 — £435,000 • 4 bed • 2 bath • 1855 ft²
4 bedroom detached house for sale in Llanthomas Lane, Llanigon, Hereford, HR3 — £595,000 • 4 bed • 2 bath • 1546 ft²
4 bedroom detached house for sale in Llanthomas Lane, Llanigon, Hereford, HR3 — £625,000 • 4 bed • 2 bath • 1720 ft²
4 bedroom detached house for sale in Boughrood, Brecon, LD3 — £575,000 • 4 bed • 2 bath • 2347 ft²


































