Energy-efficient home with garage and garden near Hay-on-Wye.
Newly built four-bedroom detached house with stone exterior
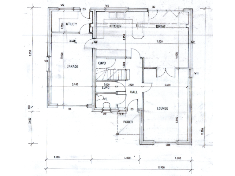
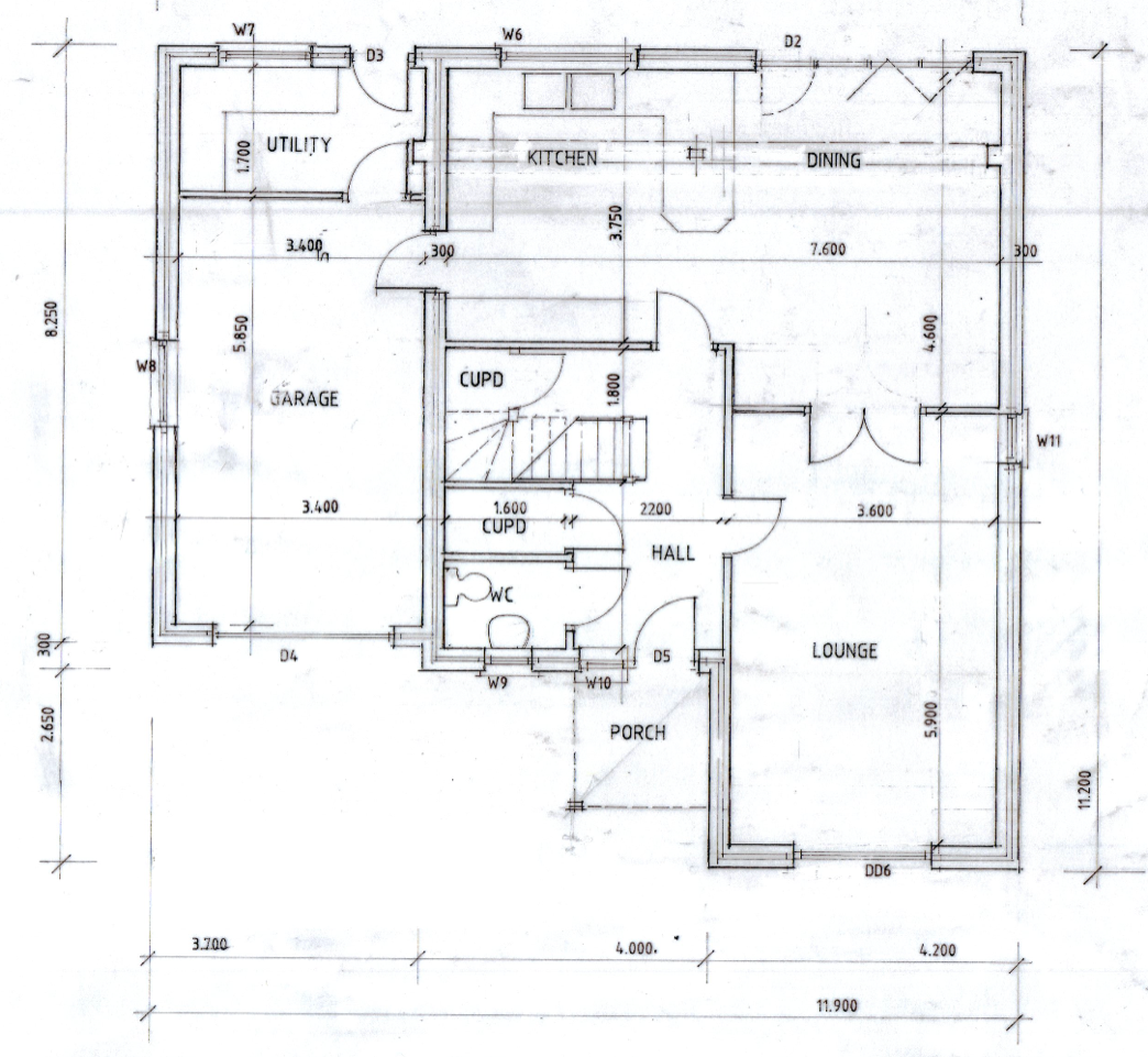
A contemporary four-bedroom detached house newly built with stone elevations, slate roof and integrated solar PV. The home comes with allowances for kitchens and bathrooms, so purchasers can personalise finishes to their taste. Sustainable features include solar panels with battery storage and Mitsubishi Ecodan air-source heating, contributing to an Energy Rating of B.
Set in a quiet hamlet four miles from Hay-on-Wye, the property offers a private driveway, single garage and a fenced garden arranged for low maintenance. Large full-height glazing and an open-plan kitchen/dining layout give good natural light and a sociable ground-floor plan for family living.
Buyers should note the house is compact at about 604 sq ft with one bathroom serving four bedrooms; internal space is therefore relatively tight. There is no mobile signal on site and broadband speeds are average. Drainage is served by a private communal treatment plant and services, installations and appliances have not been independently tested.
This house suits buyers seeking a low-maintenance modern country home with strong running-cost credentials and scope to personalise finishes. It will particularly appeal to those who prioritise sustainability, parking and countryside privacy, but not buyers who need strong mobile connectivity or generous internal floor area.
4 bedroom detached house for sale in Glasbury, Hereford, Powys, HR3 — £525,000 • 4 bed • 3 bath • 1400 ft²
4 bedroom detached house for sale in Llanthomas Lane, Llanigon, Hereford, HR3 — £625,000 • 4 bed • 2 bath • 1720 ft²
4 bedroom detached house for sale in Llanigon, Hereford, HR3 — £625,000 • 4 bed • 1 bath • 1720 ft²
4 bedroom detached house for sale in Cae Llewelyn, Cilmery, Builth Wells, Powys, LD2 — £435,000 • 4 bed • 2 bath • 1855 ft²
4 bedroom detached house for sale in Llanthomas Lane, Llanigon, Hereford, HR3 — £610,000 • 4 bed • 2 bath • 1546 ft²
4 bedroom detached house for sale in Llanthomas Lane, Llanigon, Hereford, HR3 — £595,000 • 4 bed • 2 bath • 1546 ft²


























