Charming three-bedroom home close to schools, shops and Metro station.
Period features: exposed beams and stone inglenook fireplace
This chocolate-box, three-bedroom mid-terrace sits in the historic heart of East Boldon village and is offered with no upward chain. The house keeps authentic period character — exposed beams, stone inglenook fireplace with a log burner, sash-style windows and solid wood floors — arranged over multiple levels that feel cosy and well planned.
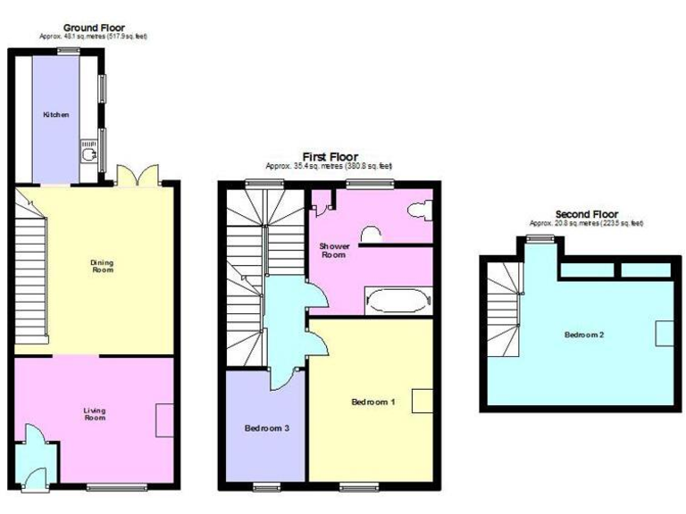
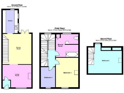
The ground floor flows from an entrance vestibule into a bright living room and separate dining room which opens onto a south-facing, two-level patio courtyard. The fitted cottage-style kitchen includes a range cooker and dishwasher; a refitted shower room serves the first floor while a spacious 16ft 10'' top-floor bedroom provides a flexible third bedroom or home-office.
Practical positives include freehold tenure, mains gas central heating, double glazing and a low council tax band. The village location puts schools, shops, pubs and the Metro within easy walking distance, appealing to families or buyers seeking a character home with convenient transport links.
Buyers should note the property’s modest footprint and small patio-style garden — it is a cottage-style lot rather than a large plot. Accommodation is spread across two staircases and three floors, which may limit accessibility for anyone with mobility needs. Overall, this is a characterful village home best suited to buyers who value period detail and a compact, well-located layout.
3 bedroom detached house for sale in Front Street, East Boldon, South Tyneside, NE36 — £375,000 • 3 bed • 1 bath • 1616 ft²
3 bedroom terraced house for sale in Langholm Road, East Boldon, NE36 — £389,950 • 3 bed • 1 bath • 1646 ft²
3 bedroom detached house for sale in Front Street, East Boldon, NE36 — £349,950 • 3 bed • 1 bath • 953 ft²
2 bedroom terraced house for sale in 2 Prospect Terrace, East Boldon, NE36 — £200,000 • 2 bed • 1 bath • 823 ft²
3 bedroom terraced house for sale in Ashbrooke Terrace, East Boldon, NE36 — £319,950 • 3 bed • 1 bath • 1270 ft²
3 bedroom terraced house for sale in Ferndale Avenue, East Boldon, NE36 — £289,000 • 3 bed • 1 bath • 1068 ft²


















































