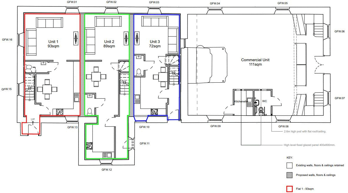
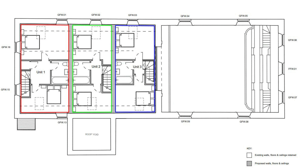
### Standout Features:
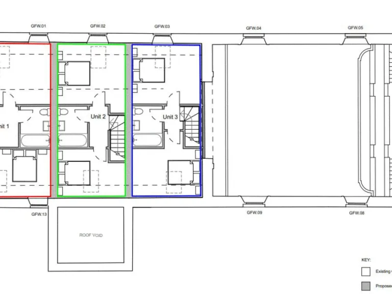
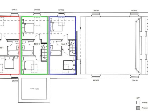
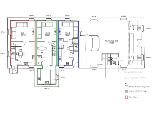
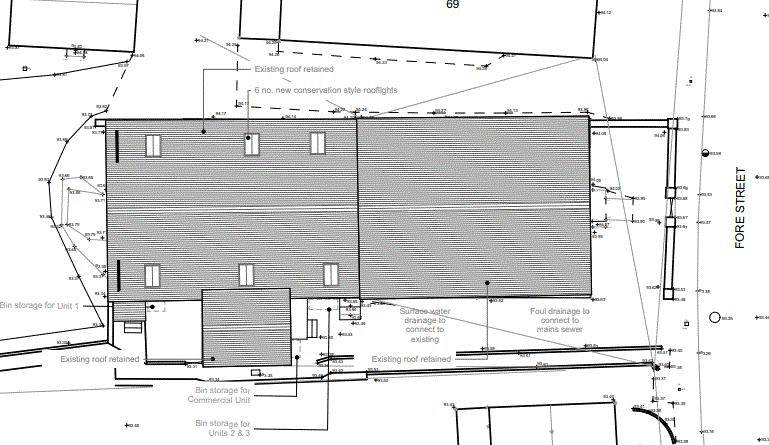
- Development potential for three two-bedroom homes (Planning Number PA21/00558)
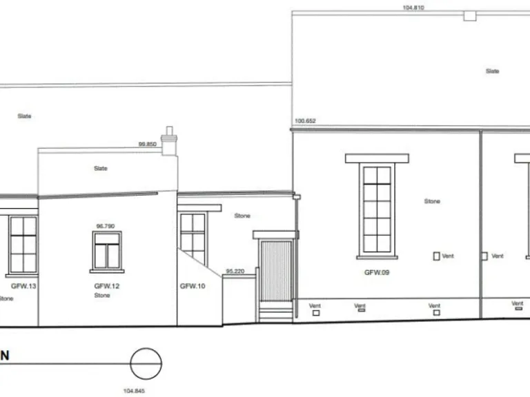
- Grade II listed building, rich in original features
- Prime central village location
- CIL tax exempt and services readily available
- Spacious interiors with historical architectural charm
- Surrounding area boasts low crime and local amenities
### Overview:
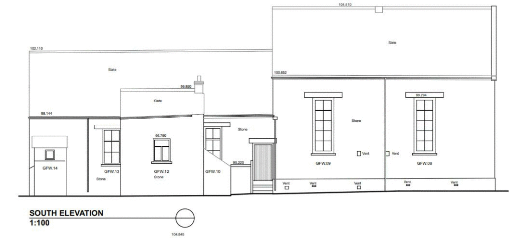
Seize this rare development opportunity in the heart of St. Stephen, where history meets potential. The rear half of a stunning Grade II listed chapel presents planning permission for three spacious two-bedroom homes. This property beautifully retains original Georgian features, including high arched windows and a striking stone façade, promising a unique living experience that marries elegance with modern comfort. The site is conveniently located near amenities such as schools, shops, and recreational facilities, making it ideal for families and investors alike.
While the building does require renovation, its generous size and substantial layout provide an excellent foundation for creating attractive homes. With excellent transport links nearby, including the A30 and a mainline railway station, this property offers both exclusivity and accessibility. Don’t miss the chance to transform this historic gem into contemporary living spaces; such an opportunity is not likely to be available for long.
1 bedroom semi-detached house for sale in Melrose Terrace, Fraddon, St. Columb, Cornwall, TR9 — £250,000 • 1 bed • 2 bath • 1486 ft²
3 bedroom detached house for sale in Mitchell, Newquay, TR8 — £475,000 • 3 bed • 2 bath • 2000 ft²
4 bedroom detached house for sale in Mitchell, Truro, TR8 — £400,000 • 4 bed • 3 bath • 2015 ft²
Residential development for sale in High Cross Street, St Austell, PL25 — £500,000 • 1 bed • 1 bath
Land for sale in Union Hill, St. Columb, TR9 — £500,000 • 4 bed • 2 bath • 450 ft²
2 bedroom end of terrace house for sale in Gwindra Road, St. Stephen, St. Austell, PL26 — £150,000 • 2 bed • 1 bath • 700 ft²






































































