BH31 6ER - 3 bedroom detached house for sale in Burnbake Road, Verwood…

View on Property Piper

3 bedroom detached house for sale in Burnbake Road, Verwood, Dorset, BH31

Summary - 45 BURNBAKE ROAD VERWOOD BH31 6ER

3 bed 1 bath Detached

**Standout Features:**
- No onward chain
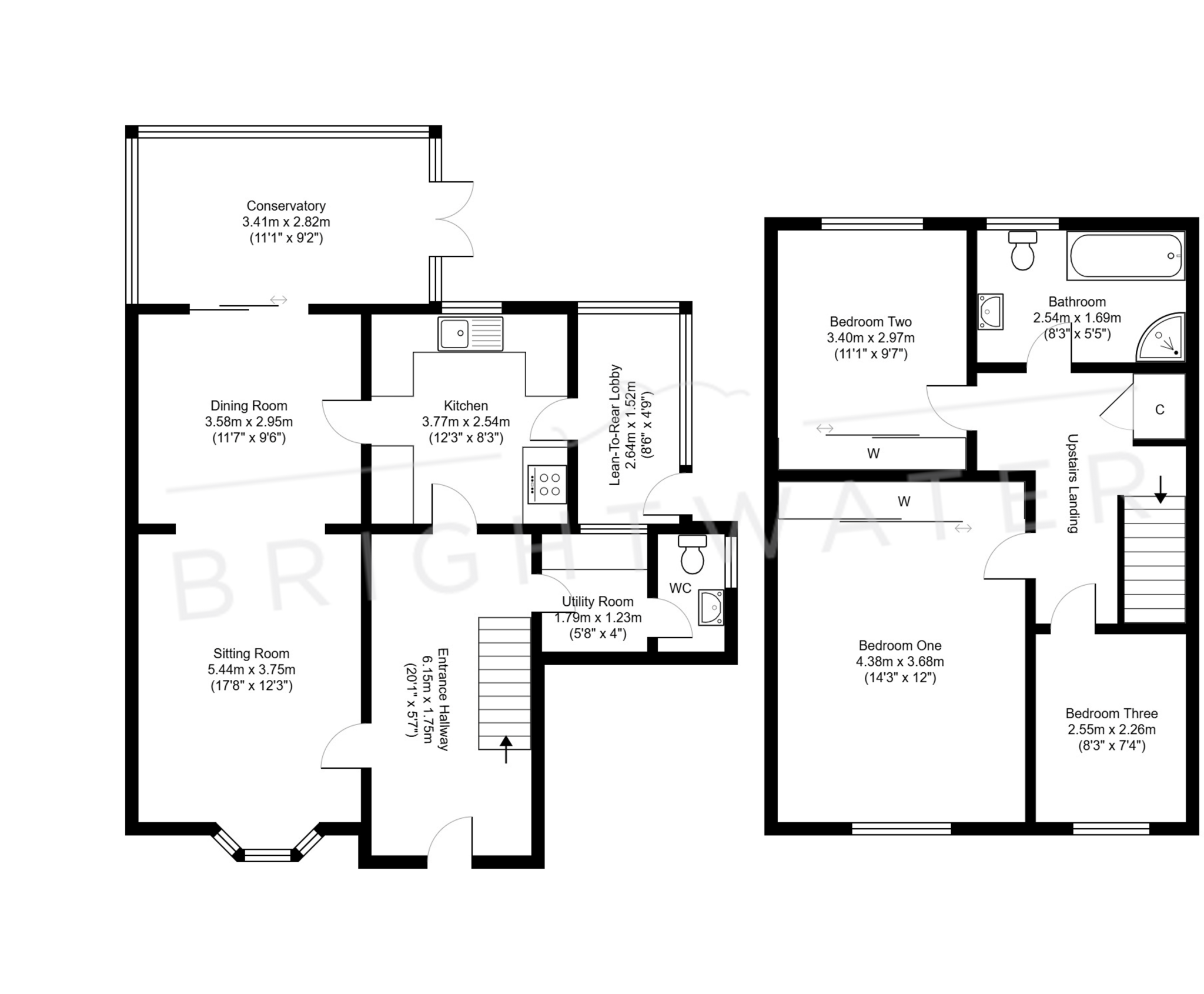
- Detached family home with 3 bedrooms (2 double, 1 single)
- Spacious 18ft lounge with a brick fireplace
- Modern UPVC double glazed conservatory
- Driveway and garage for ample parking
- Front and rear gardens with a paved patio and barbecue area
- Convenient location near amenities and schools

This delightful detached family home located in the desirable area of Verwood offers a spacious and welcoming environment for both families and investors alike. Featuring three well-proportioned bedrooms, this property includes a bright 18ft lounge that seamlessly connects to a dining area and a charming conservatory, perfect for relaxation or family gatherings. The fitted kitchen, utility room, and ground floor cloakroom add to the practicality of this property.

With a well-maintained exterior and generous garden space, this home's features extend beyond its walls, offering outdoor enjoyment and potential for entertaining. The convenient location provides easy access to everyday necessities including a Morrisons supermarket, local pubs, and reputable schools—ideal for families. With no onward chain, this property presents an excellent opportunity to make it your own.

Despite its many strengths, the average crime rate in the area shouldn't be overlooked, but the overall affluent setting and family-friendly community make it a highly attractive choice. Securing a viewing promptly is essential, as opportunities in this sought-after neighborhood are rare!

Property Details

Image Descriptions

Floorplan Description

Rooms

Textual Property Features

Detected Visual Features

EPC Details

Nearby Schools

Nearest Bars And Restaurants

,,,,}

Nearest General Shops

,,}

Nearest Grocery shops

,,}

Nearest Supermarkets

,,}

Nearest Religious buildings

,,}

Nearest Medical buildings

,,,}

Nearest Airports

}

Nearest Leisure Facilities

,,,,}

Nearest Tourist attractions

,,}

Nearest Train stations

,,,,}

Nearest Bus stations and stops

,,,,}

Nearest Hotels

,,}

Tags

Local Market Stats

AirBnB Data

Similar Properties

Meta

High Res Images

Compatible Images

Low res Images

Thumbnails

Raw Images

High Res Floorplan Images

Compatible Floorplan Images

Low res Floorplan Images

FloorplanImages Thumbnail

Raw Floorplan Images