Light-filled top-floor apartment with parking and long lease near Shoreham Beach.
- Direct river Adur views from lounge and bedrooms
- Top-floor apartment in gated riverside development
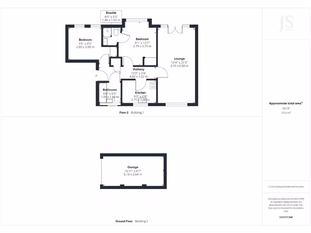
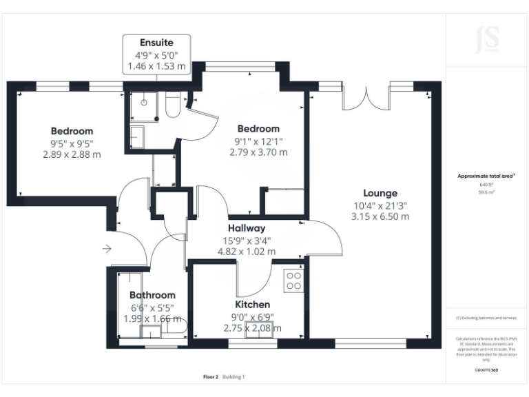
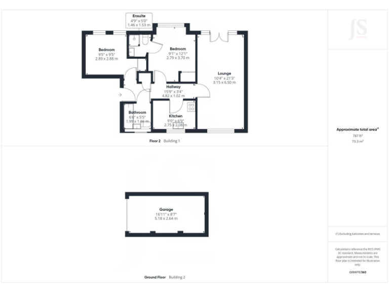
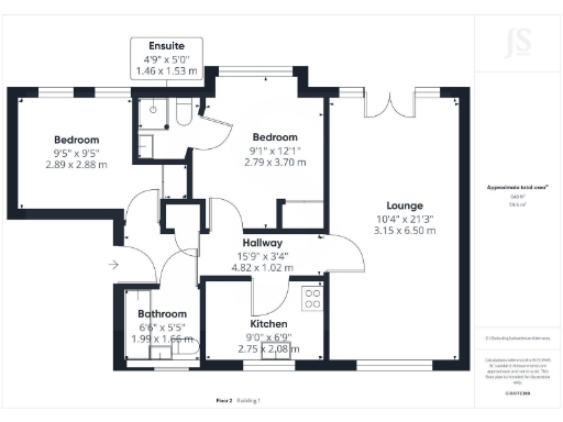
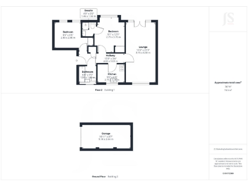
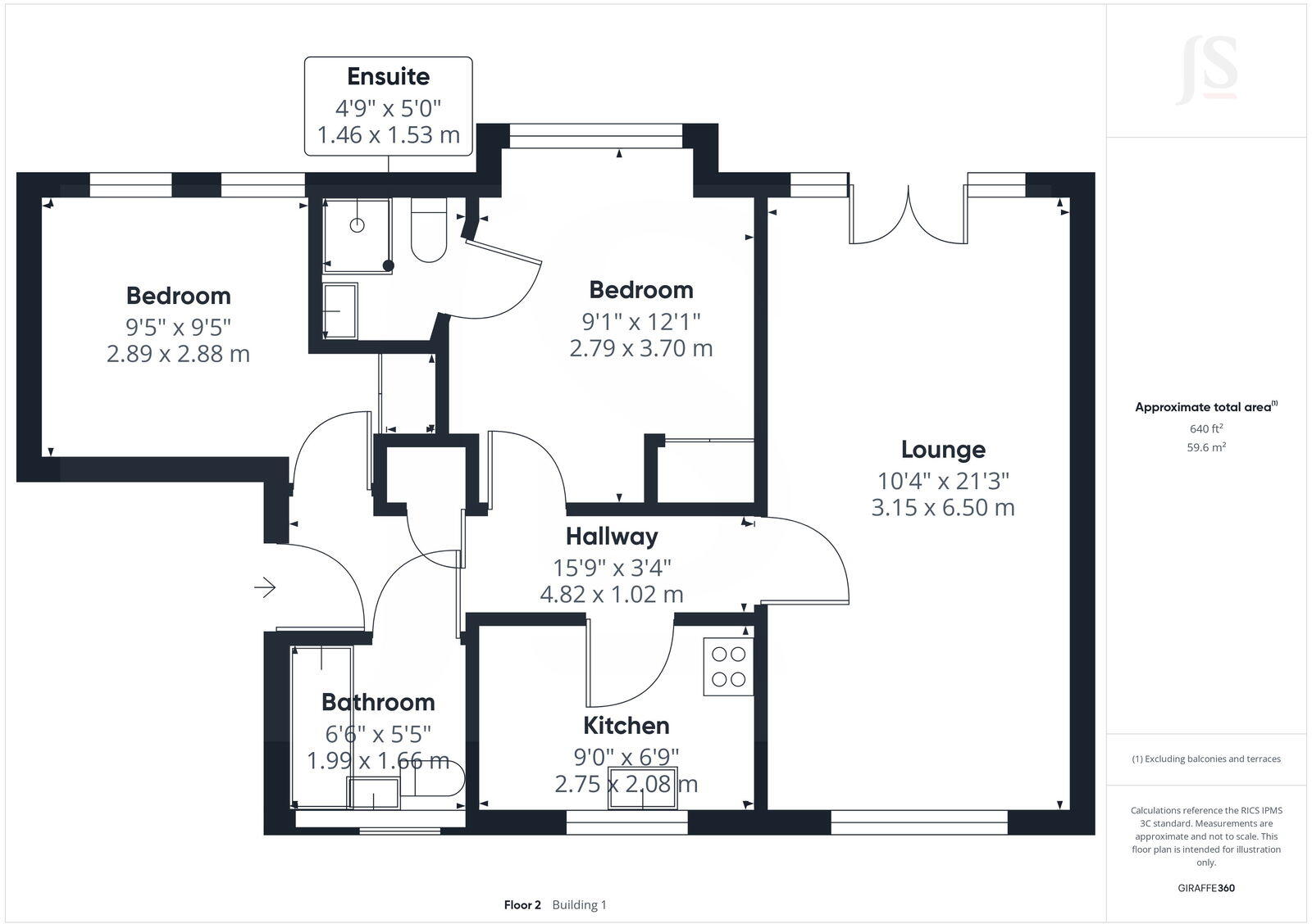
- Two double bedrooms, one with ensuite shower
- Allocated parking space plus nearby garage
- Long lease (977 years) and chain-free sale
- Low maintenance c.£960pa; ground rent c.£150pa
- No private garden; communal landscaped areas only
- Access via communal stairs; not step-free
This top-floor two-bedroom flat sits on a gated riverside development with direct views over the River Adur — a good entry-point for buyers wanting waterfront living without large running costs. The dual-aspect open-plan lounge/diner fills the apartment with light, while two double bedrooms (one ensuite) provide flexible living or rental income potential.
Practical benefits include an allocated parking space plus a garage in a nearby compound, a long lease (977 years remaining), low annual maintenance of approximately £960, and a modest ground rent of about £150. A newly fitted Glow Worm combination boiler (installed 2024) and double glazing add to the apartment’s ready-to-live-in appeal.
Considerations: there is no private garden and the flat is accessed via external communal stairs to the second/top floor, which may be less suitable for those needing step-free access. The garage is located in a nearby compound rather than adjoining the apartment, and the overall internal space is modest at around 640 sq ft.
Chain-free sale and a very favourable lease profile make this an attractive purchase for a first-time buyer or buy-to-let investor seeking a waterfront location near Shoreham town facilities and good transport links.
2 bedroom flat for sale in Hancock Way, Shoreham by Sea, BN43 — £275,000 • 2 bed • 2 bath • 694 ft²
2 bedroom apartment for sale in Newport, Shoreham Beach, BN43 — £250,000 • 2 bed • 2 bath • 635 ft²
2 bedroom flat for sale in Marys Place, Emerald Quay, Shoreham by Sea, BN43 — £250,000 • 2 bed • 2 bath • 495 ft²
2 bedroom flat for sale in Emerald Quay, Shoreham-By-Sea, BN43 — £280,000 • 2 bed • 1 bath • 567 ft²
2 bedroom apartment for sale in Emerald Quay, Shoreham-By-Sea, BN43 — £249,999 • 2 bed • 1 bath • 592 ft²
2 bedroom flat for sale in Ringed Plover Apartments at The Waterfront, BN43 — £425,000 • 2 bed • 2 bath • 825 ft²


































































